Over van Oldenbarneveltlaan 20
Luxe woning met multifunctionele begane grond en energielabel A+ Aan de Van Oldenbarneveltlaan 20 ligt deze verrassend ruime en instapklare woning, waar comfort, luxe en veelzijdigheid centraal staan. De woning is de afgelopen jaren grondig gemoderniseerd en verduurzaamd en beschikt onder andere over een warmtepomp, 34 zonnepanelen en energielabel A+. Dankzij de multifunctionele indeling is de woning uitermate geschikt voor gezinnen, werken aan huis of levensloopbestendig wonen. De rustige ligging met alle voorzieningen, scholen en uitvalswegen in de nabijheid maakt het geheel...
Kenmerken
Overdracht
- Status
- Beschikbaar
- Vraagprijs
- € 1.250.000,- k.k.
Bouwvorm
- Soort woning:
- Eengezinswoning
- Type woning:
- Twee onder één kapwoning
- Kwaliteit woning:
- Goed
- Bouwjaar:
- 1971
- Bouwvorm:
- Bestaande bouw
- Woonoppervlakte:
- 241 m2
- Perceeloppervlakte:
- 917 m2
- Externe bergruimte
- 8 m2
- Inhoud:
- 900 m3
- Aantal kamers:
- 8
- Aantal slaapkamers:
- 5
Buitenruimte
- Hoofdtuin:
- Achtertuin
- Oppervlakte hoofdtuin:
- 355 m2
- Ligging hoofdtuin:
- Noordwest
- Achterom:
- Nee
- Kwaliteit tuin:
- Verzorgd
Bergruimte
- Schuur / Berging
- Vrijstaand hout
Parkeergelegenheid
- Parkeerfaciliteiten:
- Openbaar parkeren, Op eigen terrein
Overig
- Onderhoud binnen:
- Uitstekend
- Onderhoud buiten:
- Goed
- Huidige bestemming:
- Woonruimte
Kadastrale Gegevens
- Gemeente:
- Tongelre
- Sectie:
- G
- Perceelnummer:
- 826
- Oppervlakte:
- 917 m2
- Eigendomssituatie:
- Volle eigendom
- Isolatie:
- Dakisolatie, Vloerisolatie
Omschrijving
Luxe woning met multifunctionele begane grond en energielabel A+
Aan de Van Oldenbarneveltlaan 20 ligt deze verrassend ruime en instapklare woning, waar comfort, luxe en veelzijdigheid centraal staan. De woning is de afgelopen jaren grondig gemoderniseerd en verduurzaamd en beschikt onder andere over een warmtepomp, 34 zonnepanelen en energielabel A+. Dankzij de multifunctionele indeling is de woning uitermate geschikt voor gezinnen, werken aan huis of levensloopbestendig wonen. De rustige ligging met alle voorzieningen, scholen en uitvalswegen in de nabijheid maakt het geheel compleet.
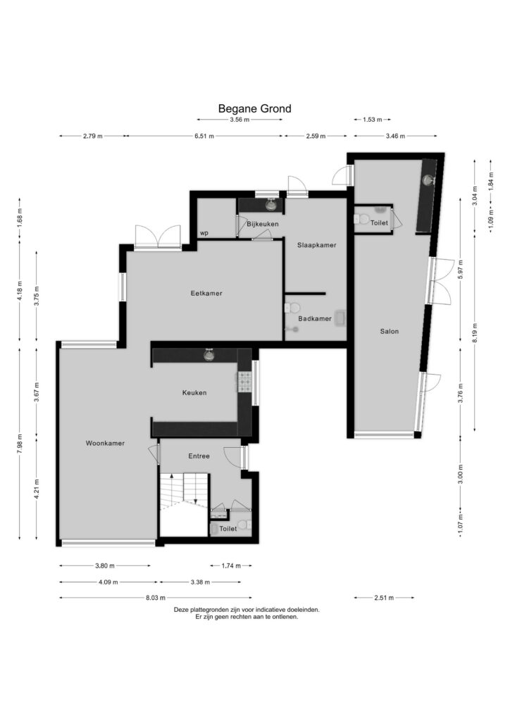
Indeling
U komt binnen in de ruime en strak afgewerkte hal van de woning. Hier bevinden zich de meterkast, een praktische bergruimte onder de trap en een toiletruimte met fonteintje.
De woonkamer bereikt u via een stijlvolle stalen deur. Hier vallen direct de ruimte en hoogwaardige afwerking op. De betegelde vloer in combinatie met vloerverwarming en vloerkoeling zorgt voor een aangenaam woonklimaat. Dankzij de grote raampartijen geniet de woonkamer van veel natuurlijk licht, wat zorgt voor een lichte leefruimte.
De woonkeuken van de woning is uitgevoerd in een U-opstelling en voorzien van een composiet werkblad en hoogwaardige inbouwapparatuur, waaronder een Bora inductiekookplaat met geïntegreerde afzuiging, Quooker, vaatwasser, oven, magnetron, koelkast en vriezer. Aansluitend bevindt zich de eetkamer met openslaande deuren naar de tuin, waardoor binnen en buiten naadloos in elkaar overlopen.
Vanuit de woonkamer loopt u naar de bijkeuken, die een eigen entree heeft en voorzien is van een pantry met spoelbak en koelkast. Samen met de aangrenzende slaap- of werkkamer en de eigen badkamer, uitgerust met douche, wastafel en toilet, vormt dit een zelfstandige woonunit op de begane grond. Ideaal voor inwonende familie of een au pair. Bovendien biedt deze ruimte directe toegang tot het overdekte terras.
Daarnaast is er een technische ruimte aanwezig met de warmtepomp, omvormer en installatie voor de vloerverwarming.
Via het overdekte terras bereikt u een volledig zelfstandige ruimte, momenteel ingericht als kapsalon. Deze ruimte beschikt over een eigen keukenblok, modern toilet en openslaande deuren naar zowel het terras als de oprit. Ideaal voor een praktijk of onderneming aan huis.
Slaapkamers
Via de trap bereikt u de overloop van de eerste verdieping, deze is voorzien van een nette pvc vloer.
De hoofdslaapkamer ligt aan de achterzijde van de woning en is dankzij de royale ramen erg licht en prettig van sfeer. Aan de voorzijde bevindt zich de tweede ruime slaapkamer, voorzien van een raam over de gehele breedte, waardoor er volop daglicht binnenvalt.
De verdieping beschikt over twee badkamers. De eerste badkamer is uitgerust met een ligbad, wastafel en vaste kasten. De tweede badkamer heeft een royale inloopdouche, toilet en wastafelmeubel, wat extra comfort biedt.
Via een vaste trap bereikt u de tweede verdieping. Hier bevinden zich nog twee slaapkamers en een praktische bergruimte, ideaal voor het opbergen van spullen.
Aan de achterzijde ligt een ruime slaapkamer met dakkapel en nette pvc-vloer. Daarnaast is er een kleinere slaapkamer, perfect te gebruiken als werk- of logeerkamer.
Tuin
Aan de voorzijde van de woning ligt een royale inrit met parkeergelegenheid voor meerdere auto’s.
De nette aangelegde achtertuin beschikt over meerdere terrassen, groene borders en een bijgebouw met overkapping en bergruimte. De zijtuin met terras biedt volop ruimte en privacy, perfect om buiten te zitten en te ontspannen.
Bijzonderheden:
– Volledig gemoderniseerd en verduurzaamd
– Energielabel A+ en voorzien van 34 zonnepanelen
– Warmtepomp en volledig geïsoleerd met HR++ glas
– Gehele begane grond voorzien van vloerverwarming én vloerkoeling
– Multifunctionele begane grond met zelfstandige woonunit, inclusief eigen badkamer
– Volledig ingerichte werkruimte/praktijk aan huis met eigen entree
– twee badkamers op de eerste verdieping
– Fraai aangelegde achter- en zijtuin met meerdere terrassen
– Royale inrit met parkeergelegenheid voor meerdere auto’s
– Centraal gelegen nabij scholen, winkels en uitvalswegen
Een unieke en veelzijdige woning met hoogwaardig afwerkingsniveau en talloze mogelijkheden. Plan een bezichtiging en ervaar zelf de ruimte, luxe en flexibiliteit die deze woning te bieden heeft. U bent van harte welkom!
ALGEMENE WERKWIJZE EN VOORWAARDEN:
De eigenaar van deze woning heeft Hypodomus Makelaars opdracht gegeven te bemiddelen bij de verkoop. Geheel vrijblijvend informeren wij je uitvoerig over de woning, over de financieringsmogelijkheden en de mogelijkheden van de verkoop van jouw eigen woning. Uiteraard is het aan te bevelen de deskundige hulp van een NVM-aankoopmakelaar in te schakelen.
Bieden
Wil je een bod op een woning doen? Uitsluitend de biedingen die in de digitale omgeving van MOVE.NL zijn geplaatst worden in behandeling genomen. Na het plannen van een bezichtiging ontvang je per e-mail gegevens inzake jouw MOVE.NL account. Is er een deadline voor een woning dan kun je dat terugzien in MOVE.NL. Na de deadline kunnen wij in het algemeen geen biedingen meer in behandeling nemen.
Zekerheden
Tot zekerheid voor de nakoming van de verplichtingen dient de koper, binnen uiterlijk 1 week na het definitief worden van de koopovereenkomst, een schriftelijke bankgarantie te stellen, c.q. een waarborgsom te storten ter hoogte van 10% van de koopsom. Verkoper beroept zich te allen tijde op het schriftelijkheidsvereiste bij de verkoop van zijn woning. Tevens is het bedrag voor een financieringsvoorbehoud dat in de koopovereenkomst opgenomen kan worden, niet hoger dan de vraagprijs van de woning.
Meetinstructie
De Meetinstructie is gebaseerd op de NEN2580. De Meetinstructie is bedoeld om een meer eenduidige manier van meten toe te passen voor het geven van een indicatie van de gebruiksoppervlakte. De Meetinstructie sluit verschillen in meetuitkomsten niet volledig uit, door bijvoorbeeld interpretatieverschillen, afrondingen of beperkingen bij het uitvoeren van de meting.
Aanbiedingsinformatie
De brochure is samengesteld om je een indruk te geven van het object. De informatie die opgenomen is in deze brochure is afkomstig van de verkoper en/of derden. Hoewel wij bij het samenstellen van de brochure zorgvuldig te werk gaan, kunnen geen rechten worden ontleend aan onjuistheden e.d. Deze informatie moet in combinatie met een bezichtiging van de woning worden beschouwd als een uitnodiging tot het doen van een bod of om in onderhandeling te treden. Deze informatie is door ons met de nodige zorgvuldigheid samengesteld. Wij ervaarden echter geen enkele aansprakelijkheid voor enige onvolledigheid, onjuistheid of anderszins, dan wel de gevolgen daarvan. Alle opgegeven maten en oppervlakten zijn indicatief. Van toepassing zijn de NVM voorwaarden.
Mondelinge-overeenstemming
Een mondelinge overeenstemming tussen een particuliere verkoper en een particuliere koper is niet rechtsgeldig. Met andere woorden: er is geen koop. Er is pas sprake van een rechtsgeldige koop als een particuliere verkoper en een particuliere koper een koopovereenkomst hebben ondertekend. Dit vloeit voort uit artikel 7:2 Burgerlijk Wetboek. Een bevestiging van de mondelinge overeenstemming per e-mail of een toegestuurd concept van de koopovereenkomst wordt niet gezien als een ‘ondertekende koopovereenkomst’. Wanneer er onderhandelingen worden aangegaan met een professionele partij en er wordt een mondelinge overeenstemming bereikt, wordt eveneens vastgehouden aan het
schriftelijkheidsvereiste.
Ouderdomsclausule (dit wordt uitsluitend gebruikt indien van toepassing)
Een ouderdomsclausule is een bepaling die door Hypodomus Makelaars wordt opgenomen in koopcontracten van woningen die ouder zijn dan 25 jaar. Deze clausule houdt in dat de koper erkent dat de woning een bepaalde ouderdom heeft en dat de kwaliteit van de woning daardoor mogelijk minder is dan van een nieuwere woning. Het wel of niet toevoegen van deze clausule is niet onderhandelbaar.
Niet-zelfbewoningsclausule (dit wordt uitsluitend gebruikt indien van toepassing)
Wanneer de verkoper recentelijk niet in de woning heeft gewoond, wordt een niet-zelfbewoningsclausule opgenomen in de koopovereenkomst. Deze clausule stelt dat de verkoper de woning nooit zelf heeft bewoond en daarom niet bekend is met de eigenschappen of mogelijke gebreken die bekend zouden zijn bij eigen gebruik. Dit betekent dat het risico van eventuele gebreken verschuift naar de koper. De koper is verantwoordelijk voor het uitvoeren van de benodigde onderzoeken. Het wel of niet toevoegen van deze clausule is niet onderhandelbaar.
Wil je meer weten over onze werkwijze, ga dan naar onze website:
www.hypodomus-eindhoven.nl




