Over Ricoutsvoort 20
Ruime gezinswoning met tuinkamer, garage en zonnepanelen!In de groene en rustige wijk Schutsboom in Helmond vindt u deze ruime gezinswoning met verrassend veel leefruimte, een moderne afwerking en fijne extra’s zoals een tuinkamer, garage en zonnepanelen. Hier woont u in een kindvriendelijke omgeving, waar kinderen veilig buiten kunnen spelen en waar u alle dagelijkse voorzieningen binnen handbereik hebt. Scholen, winkels en sportfaciliteiten liggen op korte afstand en ook natuur en recreatie zijn dichtbij. Dankzij de gunstige ligging bent u bovendien binnen enkele minuten in het centrum...
Kenmerken
Overdracht
- Status
- Verkocht onder voorbehoud
- Vraagprijs
- € 595.000,- k.k.
Bouwvorm
- Soort woning:
- Eengezinswoning
- Type woning:
- Geschakelde twee onder één kapwoning
- Kwaliteit woning:
- Goed
- Bouwjaar:
- 2000
- Bouwvorm:
- Bestaande bouw
- Woonoppervlakte:
- 141 m2
- Perceeloppervlakte:
- 219 m2
- Externe bergruimte
- 0 m2
- Inhoud:
- 564 m3
- Aantal kamers:
- 6
- Aantal slaapkamers:
- 4
- C.V.-Ketel:
- Intergas HRE
- C.V.-Ketel bouwjaar
- 2015
- C.V.-Ketel brandstof
- Gas
Buitenruimte
- Hoofdtuin:
- Achtertuin
- Oppervlakte hoofdtuin:
- 64 m2
- Ligging hoofdtuin:
- Noordwest
- Achterom:
- Nee
- Kwaliteit tuin:
- Normaal
Parkeergelegenheid
- Parkeerfaciliteiten:
- Openbaar parkeren, Op eigen terrein
Overig
- Onderhoud binnen:
- Goed
- Onderhoud buiten:
- Goed
- Huidige bestemming:
- Woonruimte
Kadastrale Gegevens
- Gemeente:
- Helmond
- Sectie:
- U
- Perceelnummer:
- 3820
- Oppervlakte:
- 219 m2
- Eigendomssituatie:
- Volle eigendom
- Isolatie:
- Dakisolatie, Muurisolatie, Vloerisolatie, Dubbelglas
Omschrijving
Ruime gezinswoning met tuinkamer, garage en zonnepanelen!
In de groene en rustige wijk Schutsboom in Helmond vindt u deze ruime gezinswoning met verrassend veel leefruimte, een moderne afwerking en fijne extra’s zoals een tuinkamer, garage en zonnepanelen. Hier woont u in een kindvriendelijke omgeving, waar kinderen veilig buiten kunnen spelen en waar u alle dagelijkse voorzieningen binnen handbereik hebt. Scholen, winkels en sportfaciliteiten liggen op korte afstand en ook natuur en recreatie zijn dichtbij. Dankzij de gunstige ligging bent u bovendien binnen enkele minuten in het centrum van Helmond en bereikt u eenvoudig de uitvalswegen richting Eindhoven en de A67.
Indeling
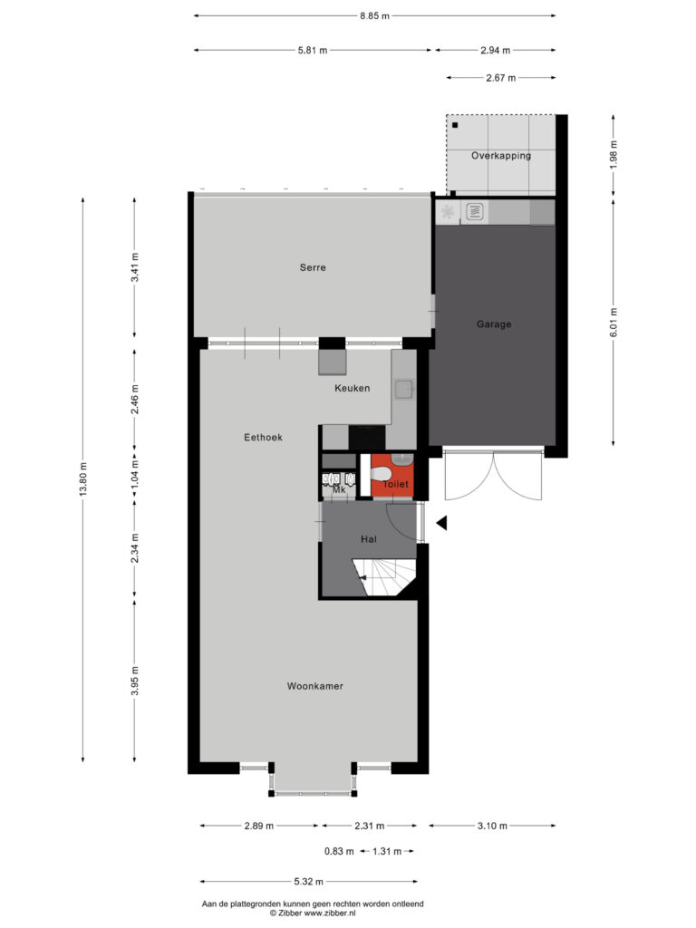
Begane grond
U komt binnen in de hal van de woning, waar zich de meterkast en de trapopgang bevinden. Daarnaast is hier een modern afgewerkte toiletruimte met fonteintje. De gehele begane grond is voorzien van een strakke gietvloer met comfortabele vloerverwarming, wat zorgt voor een eigentijdse en warme uitstraling.
De lichte woonkamer heeft een praktische L-vorm. Aan de voorzijde bevindt zich een gezellige zithoek met erkerraam, terwijl aan de achterzijde het eetgedeelte ondergebracht is met openslaande deuren naar de tuinkamer. Dankzij de grote ramen aan zowel de voor- als achterzijde valt er volop daglicht binnen.
Vanuit het eetgedeelte loopt u zo de tuinkamer in, een echte verlenging van de leefruimte. De betegelde tuinkamer is voorzien van glazen schuifwanden en dimbare verlichting, waardoor u deze het hele jaar door kunt gebruiken. Vanuit hier is ook de garage bereikbaar.
De keuken is in 2022 vernieuwd en uitgevoerd in een hoekopstelling. U beschikt hier over een kunststof werkblad, een vaatwasser, een inductiekookplaat met geïntegreerde afzuiging en een oven. Daarnaast is er een apart meubel met een ruime koelkast, waardoor de keuken zowel stijlvol als praktisch is ingericht.
Eerste verdieping
De overloop op deze verdieping geeft toegang tot drie slaapkamers, de badkamer en het moderne separate toilet. De gehele verdieping is voorzien van een laminaatvloer, met uitzondering van de badkamer en het toilet.
De ouderslaapkamer ligt aan de voorzijde van de woning en is bijzonder licht dankzij het grote erkerraam. Daarnaast beschikt deze kamer over een praktische inloopkast.
Aan de achterzijde bevinden zich nog twee ruime slaapkamers. Ook deze kamers zijn zeer licht en comfortabel van formaat. Momenteel worden ze gebruikt als kinderkamer, maar ze zijn ook uitstekend geschikt als logeerkamer of studeer-/werkkamer.
De badkamer is volledig betegeld en uitgerust met een ligbad, douchecabine en een breed wastafelmeubel.
Tweede verdieping
Op deze verdieping vindt u een royale open ruimte, die dankzij de gevelramen en het dakraam erg licht is. De gehele verdieping is voorzien van een laminaatvloer. Momenteel wordt deze ruimte gebruikt als slaapkamer en wasruimte, maar hij biedt ook volop mogelijkheden voor het realiseren van extra kamers.
Daarnaast zijn hier de aansluitingen voor de wasmachine en droger te vinden, evenals de Intergas HRE cv-combiketel en de WTW-installatie.
Garage
De garage is ruim en praktisch ingericht. De openslaande deuren en de extra tuindeur zorgen voor gemakkelijke toegang tot de achtertuin. Daarnaast is er een handig keukenblok met inbouwkoelkast en magnetron. Dankzij de afmetingen van de garage is er voldoende ruimte voor een auto, fietsen en overige opslag.
Achtertuin
De verzorgde achtertuin is aangelegd met een gazon, terras en een overkapping waar u heerlijk beschut kunt genieten.
Bijzonderheden:
– Ruime gezinswoning met tuinkamer en garage
– 12 zonnepanelen aanwezig
– Begane grond volledig voorzien van vloerverwarming
– Mogelijkheid voor extra kamers op de tweede verdieping
– Verzorgde achtertuin met overkapping
– Gelegen in kindvriendelijke en rustige wijk Schutsboom
– Scholen, winkels, sportfaciliteiten en natuur in de nabije omgeving
– Uitstekende bereikbaarheid naar centrum Helmond en uitvalswegen
Een complete gezinswoning waar ruimte, comfort en duurzaamheid samenkomen. Benieuwd geworden? Plan snel een bezichtiging en ervaar het zelf!
ALGEMENE WERKWIJZE EN VOORWAARDEN:
De eigenaar van deze woning heeft Hypodomus Makelaars opdracht gegeven te bemiddelen bij de verkoop. Geheel vrijblijvend informeren wij je uitvoerig over de woning, over de financieringsmogelijkheden en de mogelijkheden van de verkoop van jouw eigen woning. Uiteraard is het aan te bevelen de deskundige hulp van een NVM-aankoopmakelaar in te schakelen.
Bieden
Wil je een bod op een woning doen? Uitsluitend de biedingen die in de digitale omgeving van MOVE.NL zijn geplaatst worden in behandeling genomen. Na het plannen van een bezichtiging ontvang je per e-mail gegevens inzake jouw MOVE.NL account. Is er een deadline voor een woning dan kun je dat terugzien in MOVE.NL. Na de deadline kunnen wij in het algemeen geen biedingen meer in behandeling nemen.
Zekerheden
Tot zekerheid voor de nakoming van de verplichtingen dient de koper, binnen uiterlijk 1 week na het definitief worden van de koopovereenkomst, een schriftelijke bankgarantie te stellen, c.q. een waarborgsom te storten ter hoogte van 10% van de koopsom. Verkoper beroept zich te allen tijde op het schriftelijkheidsvereiste bij de verkoop van zijn woning. Tevens is het bedrag voor een financieringsvoorbehoud dat in de koopovereenkomst opgenomen kan worden, niet hoger dan de vraagprijs van de woning.
Meetinstructie
De Meetinstructie is gebaseerd op de NEN2580. De Meetinstructie is bedoeld om een meer eenduidige manier van meten toe te passen voor het geven van een indicatie van de gebruiksoppervlakte. De Meetinstructie sluit verschillen in meetuitkomsten niet volledig uit, door bijvoorbeeld interpretatieverschillen, afrondingen of beperkingen bij het uitvoeren van de meting.
Aanbiedingsinformatie
De brochure is samengesteld om je een indruk te geven van het object. De informatie die opgenomen is in deze brochure is afkomstig van de verkoper en/of derden. Hoewel wij bij het samenstellen van de brochure zorgvuldig te werk gaan, kunnen geen rechten worden ontleend aan onjuistheden e.d. Deze informatie moet in combinatie met een bezichtiging van de woning worden beschouwd als een uitnodiging tot het doen van een bod of om in onderhandeling te treden. Deze informatie is door ons met de nodige zorgvuldigheid samengesteld. Wij ervaarden echter geen enkele aansprakelijkheid voor enige onvolledigheid, onjuistheid of anderszins, dan wel de gevolgen daarvan. Alle opgegeven maten en oppervlakten zijn indicatief. Van toepassing zijn de NVM voorwaarden.
Mondelinge-overeenstemming
Een mondelinge overeenstemming tussen een particuliere verkoper en een particuliere koper is niet rechtsgeldig. Met andere woorden: er is geen koop. Er is pas sprake van een rechtsgeldige koop als een particuliere verkoper en een particuliere koper een koopovereenkomst hebben ondertekend. Dit vloeit voort uit artikel 7:2 Burgerlijk Wetboek. Een bevestiging van de mondelinge overeenstemming per e-mail of een toegestuurd concept van de koopovereenkomst wordt niet gezien als een ‘ondertekende koopovereenkomst’. Wanneer er onderhandelingen worden aangegaan met een professionele partij en er wordt een mondelinge overeenstemming bereikt, wordt eveneens vastgehouden aan het
schriftelijkheidsvereiste.
Ouderdomsclausule (dit wordt uitsluitend gebruikt indien van toepassing)
Een ouderdomsclausule is een bepaling die door Hypodomus Makelaars wordt opgenomen in koopcontracten van woningen die ouder zijn dan 25 jaar. Deze clausule houdt in dat de koper erkent dat de woning een bepaalde ouderdom heeft en dat de kwaliteit van de woning daardoor mogelijk minder is dan van een nieuwere woning. Het wel of niet toevoegen van deze clausule is niet onderhandelbaar.
Niet-zelfbewoningsclausule (dit wordt uitsluitend gebruikt indien van toepassing)
Wanneer de verkoper recentelijk niet in de woning heeft gewoond, wordt een niet-zelfbewoningsclausule opgenomen in de koopovereenkomst. Deze clausule stelt dat de verkoper de woning nooit zelf heeft bewoond en daarom niet bekend is met de eigenschappen of mogelijke gebreken die bekend zouden zijn bij eigen gebruik. Dit betekent dat het risico van eventuele gebreken verschuift naar de koper. De koper is verantwoordelijk voor het uitvoeren van de benodigde onderzoeken. Het wel of niet toevoegen van deze clausule is niet onderhandelbaar.
Wil je meer weten over onze werkwijze, ga dan naar onze website:
www.hypodomus-eindhoven.nl






















































