Over Laagstraat 369
In de karakteristieke wijk Blaarthem staat dit ruime jaren '30 woonhuis met een prettige indeling en opvallend veel mogelijkheden. Een woning die zich uitstekend leent voor eigen bewoning, maar ook interessant is voor wie wonen en verhuren wil combineren. De mogelijkheid tot splitsing in een benedenwoning en een bovenwoning (type maisonnette) maakt dit huis extra veelzijdig. Met onder andere 8 zonnepanelen, een dakterras en meerdere woonlagen is dit een fijne plek met toekomst. De woning is gelegen aan een rustige straat in de wijk Blaarthem (Gestel), met om de hoek een groen plantsoen met...
Kenmerken
Overdracht
- Status
- Beschikbaar
- Vraagprijs
- € 530.000,- k.k.
Bouwvorm
- Soort woning:
- Eengezinswoning
- Type woning:
- Tussenwoning
- Kwaliteit woning:
- Goed
- Bouwjaar:
- 1930
- Bouwvorm:
- Bestaande bouw
- Woonoppervlakte:
- 149 m2
- Perceeloppervlakte:
- 114 m2
- Externe bergruimte
- 0 m2
- Inhoud:
- 551 m3
- Aantal kamers:
- 5
- Aantal slaapkamers:
- 3
- Aantal woonlagen:
- 3
- C.V.-Ketel:
- Intergas
- C.V.-Ketel bouwjaar
- 2024
- C.V.-Ketel brandstof
- Gas
- C.V.-Ketel status
- Huur
Buitenruimte
- Hoofdtuin:
- Zonneterras
- Oppervlakte hoofdtuin:
- 21 m2
- Ligging hoofdtuin:
- Zuidoost
- Achterom:
- Nee
- Kwaliteit tuin:
- Normaal
Parkeergelegenheid
- Parkeerfaciliteiten:
- Openbaar parkeren
Overig
- Onderhoud binnen:
- Goed
- Onderhoud buiten:
- Goed
- Huidige bestemming:
- Woonruimte
Kadastrale Gegevens
- Gemeente:
- Gestel
- Sectie:
- D
- Perceelnummer:
- 3322
- Oppervlakte:
- 114 m2
- Eigendomssituatie:
- Volle eigendom
- Isolatie:
- Dakisolatie, Dubbelglas
Omschrijving
In de karakteristieke wijk Blaarthem staat dit ruime jaren ’30 woonhuis met een prettige indeling en opvallend veel mogelijkheden. Een woning die zich uitstekend leent voor eigen bewoning, maar ook interessant is voor wie wonen en verhuren wil combineren. De mogelijkheid tot splitsing in een benedenwoning en een bovenwoning (type maisonnette) maakt dit huis extra veelzijdig. Met onder andere 8 zonnepanelen, een dakterras en meerdere woonlagen is dit een fijne plek met toekomst.
De woning is gelegen aan een rustige straat in de wijk Blaarthem (Gestel), met om de hoek een groen plantsoen met speelgelegenheid. Op loopafstand liggen diverse speeltuintjes, de winkelvoorzieningen van het Franz Leharplein, basisschool de Kameleon, sportvoorzieningen en de Genneper Parken, waar je heerlijk kunt wandelen en fietsen. Vlakbij bevinden zich tevens de High Tech Campus en ASML. Het stadscentrum is op fietsafstand gelegen en de ring van Eindhoven is snel te bereiken.
Indeling
Begane grond
Je komt binnen via de ruime entree met meterkast en de afsluitbare trapopgang naar de eerste verdieping.
Vanuit hier loop je door naar de woonkamer die zich uitstrekt over de volledige diepte van de woning. Het is een fijne leefruimte met een lichte laminaatvloer, strak gestucte wanden en inbouwspots in het plafond.
Aan de voorzijde bevindt zich de keuken in een wandopstelling, voorzien van alle benodigde inbouwapparatuur en kastruimte.
Aan de achterzijde is de woning uitgebouwd. Deze aanbouw is verrassend licht door de aanwezige lichttubes. Het achterste gedeelte wordt momenteel gebruikt als slaapvertrek en is voorzien van een wastafel en een douchecabine met badfunctie. Daarnaast is er een praktische bergkast met de opstellen van de gehuurde c.v.-ketel. Het toilet bevindt zich onder de trap en is uitgevoerd met een wandcloset en fonteintje.
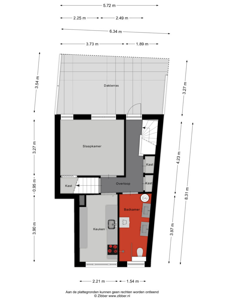
Eerste verdieping
De eerste verdieping biedt veel ruimte en flexibiliteit. De overloop biedt toegang tot twee slaapkamers, de badkamer, een dakterras en twee bergkasten.
De slaapkamer aan de achterzijde is ruim van opzet en is afgewerkt met een laminaatvloer en gestucte wanden en plafond. Deze kamer beschikt over kunststof kozijnen met HR++ beglazing en een inbouwkast.
De tweede slaapkamer is momenteel ingericht als keuken voor de bovenwoning en is voorzien van alle inbouwapparatuur (koelkast met vriesfunctie, oven, inductiekookplaat en afzuigkap). Ook deze ruimte is netjes afgewerkt met een laminaatvloer en gestucte wanden en plafond. De kunststof kozijnen zijn eveneens voorzien van HR++ beglazing.
De badkamer is compleet en ruim uitgevoerd met een elektrische boiler, twee wastafels met een wastafelmeubel, een grote spiegel met verlichting en verwarming, een wandcloset, douche, designradiator en de wasmachineaansluiting. De ruimte is half betegeld en verder strak afgewerkt.
Het dakterras ligt op het zuidoosten en is voorzien van houten vlonders. Een prettige plek om buiten te zitten en van de zon te genieten.
Tweede verdieping
Via een vaste trap bereik je de tweede verdieping. Hier bevindt zich een open zolder(slaap)kamer met een laminaatvloer, een kunststof dakkapel aan de achterzijde en een dakraam. Deze verdieping is ingericht als ruime slaapkamer en zorgt voor extra wooncomfort.
Algemeen
– Jaren ’30 woonhuis met mogelijkheid tot splitsing
– Gelegen in de karakteristieke wijk Blaarthem
– Voorzien van 8 zonnepanelen
– Dakterras op het zuidoosten
– Kunststof kozijnen met HR++ beglazing
– Ruime en flexibele indeling
– De c.v.-ketel is gehuurd a € 36,95 per maand
ALGEMENE WERKWIJZE EN VOORWAARDEN:
De eigenaar van deze woning heeft Hypodomus Makelaars opdracht gegeven te bemiddelen bij de verkoop. Geheel vrijblijvend informeren wij je uitvoerig over de woning, over de financieringsmogelijkheden en de mogelijkheden van de verkoop van jouw eigen woning. Uiteraard is het aan te bevelen de deskundige hulp van een NVM-aankoopmakelaar in te schakelen.
Bieden
Wil je een bod op een woning doen? Uitsluitend de biedingen die in de digitale omgeving van MOVE.NL zijn geplaatst worden in behandeling genomen. Na het plannen van een bezichtiging ontvang je per e-mail gegevens inzake jouw MOVE.NL account. Is er een deadline voor een woning dan kun je dat terugzien in MOVE.NL. Na de deadline kunnen wij in het algemeen geen biedingen meer in behandeling nemen.
Zekerheden
Tot zekerheid voor de nakoming van de verplichtingen dient de koper, binnen uiterlijk 1 week na het definitief worden van de koopovereenkomst, een schriftelijke bankgarantie te stellen, c.q. een waarborgsom te storten ter hoogte van 10% van de koopsom. Verkoper beroept zich te allen tijde op het schriftelijkheidsvereiste bij de verkoop van zijn woning. Tevens is het bedrag voor een financieringsvoorbehoud dat in de koopovereenkomst opgenomen kan worden, niet hoger dan de vraagprijs van de woning.
Meetinstructie
De Meetinstructie is gebaseerd op de NEN2580. De Meetinstructie is bedoeld om een meer eenduidige manier van meten toe te passen voor het geven van een indicatie van de gebruiksoppervlakte. De Meetinstructie sluit verschillen in meetuitkomsten niet volledig uit, door bijvoorbeeld interpretatieverschillen, afrondingen of beperkingen bij het uitvoeren van de meting.
Aanbiedingsinformatie
De brochure is samengesteld om je een indruk te geven van het object. De informatie die opgenomen is in deze brochure is afkomstig van de verkoper en/of derden. Hoewel wij bij het samenstellen van de brochure zorgvuldig te werk gaan, kunnen geen rechten worden ontleend aan onjuistheden e.d. Deze informatie moet in combinatie met een bezichtiging van de woning worden beschouwd als een uitnodiging tot het doen van een bod of om in onderhandeling te treden. Deze informatie is door ons met de nodige zorgvuldigheid samengesteld. Wij ervaarden echter geen enkele aansprakelijkheid voor enige onvolledigheid, onjuistheid of anderszins, dan wel de gevolgen daarvan. Alle opgegeven maten en oppervlakten zijn indicatief. Van toepassing zijn de NVM voorwaarden.
Mondelinge-overeenstemming
Een mondelinge overeenstemming tussen een particuliere verkoper en een particuliere koper is niet rechtsgeldig. Met andere woorden: er is geen koop. Er is pas sprake van een rechtsgeldige koop als een particuliere verkoper en een particuliere koper een koopovereenkomst hebben ondertekend. Dit vloeit voort uit artikel 7:2 Burgerlijk Wetboek. Een bevestiging van de mondelinge overeenstemming per e-mail of een toegestuurd concept van de koopovereenkomst wordt niet gezien als een ‘ondertekende koopovereenkomst’. Wanneer er onderhandelingen worden aangegaan met een professionele partij en er wordt een mondelinge overeenstemming bereikt, wordt eveneens vastgehouden aan het
schriftelijkheidsvereiste.
Ouderdomsclausule (dit wordt uitsluitend gebruikt indien van toepassing)
Een ouderdomsclausule is een bepaling die door Hypodomus Makelaars wordt opgenomen in koopcontracten van woningen die ouder zijn dan 25 jaar. Deze clausule houdt in dat de koper erkent dat de woning een bepaalde ouderdom heeft en dat de kwaliteit van de woning daardoor mogelijk minder is dan van een nieuwere woning. Het wel of niet toevoegen van deze clausule is niet onderhandelbaar.
Niet-zelfbewoningsclausule (dit wordt uitsluitend gebruikt indien van toepassing)
Wanneer de verkoper recentelijk niet in de woning heeft gewoond, wordt een niet-zelfbewoningsclausule opgenomen in de koopovereenkomst. Deze clausule stelt dat de verkoper de woning nooit zelf heeft bewoond en daarom niet bekend is met de eigenschappen of mogelijke gebreken die bekend zouden zijn bij eigen gebruik. Dit betekent dat het risico van eventuele gebreken verschuift naar de koper. De koper is verantwoordelijk voor het uitvoeren van de benodigde onderzoeken. Het wel of niet toevoegen van deze clausule is niet onderhandelbaar.
Wil je meer weten over onze werkwijze, ga dan naar onze website:
www.hypodomus-eindhoven.nl



