Over Heuvelwal 27
Royaal wonen in Noordrand Veldhoven met uitzicht en multifunctioneel souterrain!In de gewilde wijk Noordrand in Veldhoven, grenzend aan Meerhoven, vindt u deze verrassend ruime gezinswoning. Met vijf royale slaapkamers, een multifunctionele ruimte in het recent gerenoveerde souterrain en een zonnige tuin biedt dit huis alles wat een modern gezin zich kan wensen. De woning heeft bovendien een vrij uitzicht over groen en speelvoorzieningen, terwijl scholen, een kinderopvang, winkels, openbaar vervoer en uitvalswegen direct in de buurt liggen. Ook natuur en recreatie, zoals landschapspark...
Kenmerken
Overdracht
- Status
- Verkocht onder voorbehoud
- Vraagprijs
- € 775.000,- k.k.
Bouwvorm
- Soort woning:
- Eengezinswoning
- Type woning:
- Geschakelde woning
- Kwaliteit woning:
- Goed tot uitstekend
- Bouwjaar:
- 2005
- Bouwvorm:
- Bestaande bouw
- Woonoppervlakte:
- 195 m2
- Perceeloppervlakte:
- 224 m2
- Externe bergruimte
- 0 m2
- Inhoud:
- 692 m3
- Aantal kamers:
- 7
- Aantal slaapkamers:
- 5
Buitenruimte
- Hoofdtuin:
- Achtertuin
- Oppervlakte hoofdtuin:
- 104 m2
- Ligging hoofdtuin:
- Noordoost
- Achterom:
- Ja
- Kwaliteit tuin:
- Fraai aangelegd
Bergruimte
- Schuur / Berging
- Inpandig
Parkeergelegenheid
- Parkeerfaciliteiten:
- Openbaar parkeren, Op eigen terrein
Overig
- Onderhoud binnen:
- Goed tot uitstekend
- Onderhoud buiten:
- Goed tot uitstekend
- Huidige bestemming:
- Woonruimte
Kadastrale Gegevens
- Gemeente:
- Veldhoven
- Sectie:
- K
- Perceelnummer:
- 2476
- Oppervlakte:
- 224 m2
- Eigendomssituatie:
- Volle eigendom
- Isolatie:
- Volledig geïsoleerd
Omschrijving
Royaal wonen in Noordrand Veldhoven met uitzicht en multifunctioneel souterrain!
In de gewilde wijk Noordrand in Veldhoven, grenzend aan Meerhoven, vindt u deze verrassend ruime gezinswoning. Met vijf royale slaapkamers, een multifunctionele ruimte in het recent gerenoveerde souterrain en een zonnige tuin biedt dit huis alles wat een modern gezin zich kan wensen. De woning heeft bovendien een vrij uitzicht over groen en speelvoorzieningen, terwijl scholen, een kinderopvang, winkels, openbaar vervoer en uitvalswegen direct in de buurt liggen. Ook natuur en recreatie, zoals landschapspark Meerland, zijn op loopafstand. Dankzij de uitstekende bereikbaarheid bent u binnen korte tijd bij ASML, het Maxima Medisch Centrum en de High Tech Campus.
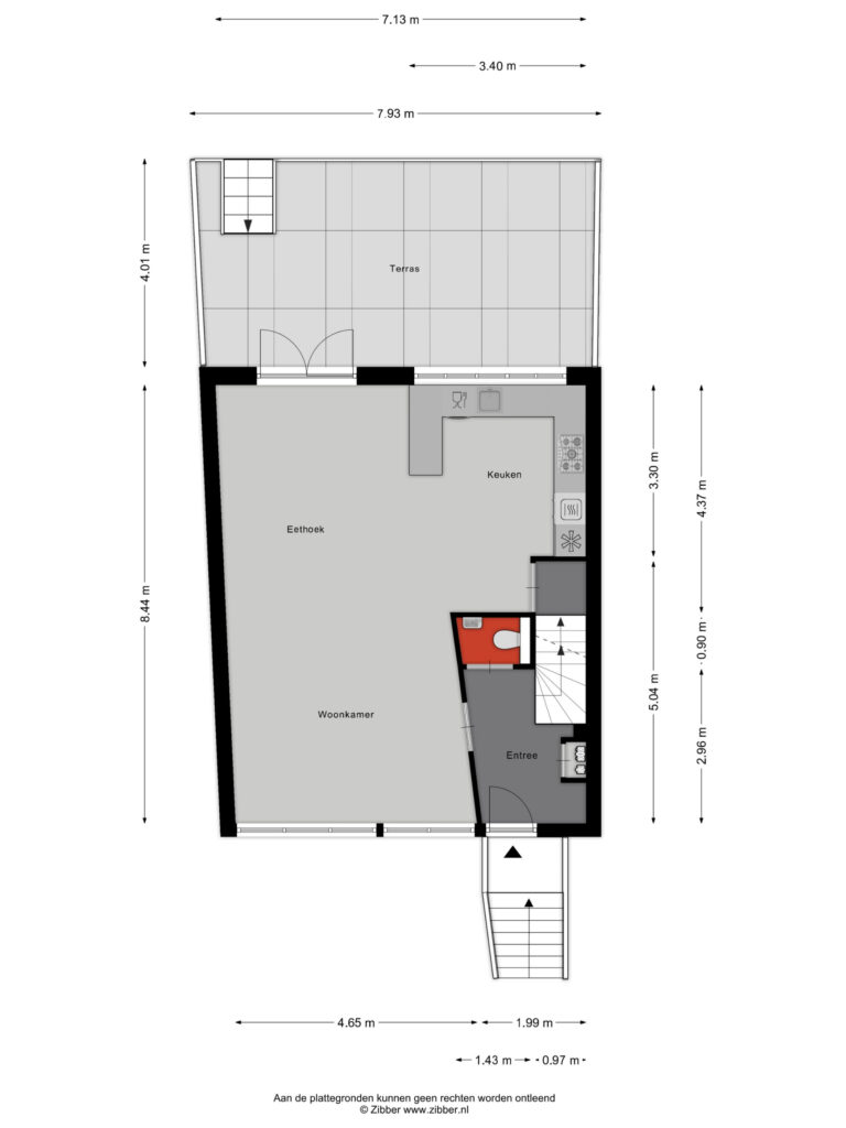
Indeling
Begane grond
U komt binnen in de ruime en vooral lichte hal van de woning. Hier vindt u de garderobe, de meterkast en een modern afgewerkt toilet met wastafel en zwevend closet. De gehele begane grond is voorzien van een onderhoudsvriendelijke grindvloer die de woning een strakke en eigentijdse uitstraling geeft.
Vanuit de hal bereikt u de woonkamer. Deze valt direct op door de plafondhoge ramen aan de voorzijde, die zorgen voor een prachtige lichtinval. De royale woon- en eetkamer is afgewerkt met strak stucwerk en beschikt over openslaande deuren naar de verhoogde achtertuin. Een ideale plek om te ontspannen en te genieten van het uitzicht op groen en eigen buitenruimte. Ook is de woonkamer voorzien van vloerverwarming
De keuken bevindt zich aan de achterzijde van de woning en is uitgevoerd in een ruime L-opstelling met een praktische bar, perfect voor een snel ontbijt of een gezellig drankje. U beschikt hier over een kunststof werkblad en diverse inbouwapparatuur, waaronder een gasfornuis met wokbrander, afzuigkap, oven, magnetron en koelkast. Vanuit de keuken heeft u bovendien inpandige toegang tot het souterrain.
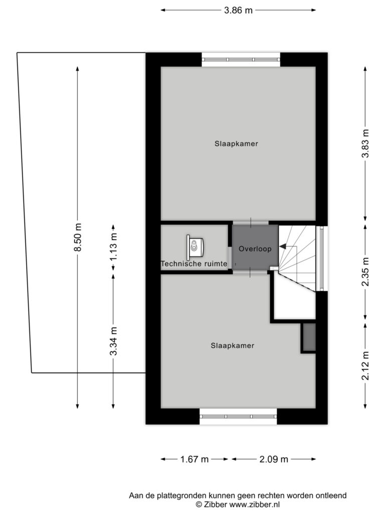
Eerste verdieping
De royale overloop biedt toegang tot drie slaapkamers en de badkamer. De trap en overloop zijn afgewerkt met een onderhoudsvriendelijke grindvloer, terwijl alle aangrenzende slaapkamers zijn voorzien van een houten vloer.
Aan de achterzijde van de woning bevindt zich de royale master bedroom, die volop ruimte biedt voor een groot bed en extra kasten. De kamer is keurig afgewerkt en voorzien van isolerende beglazing en een houten vloer.
Daarnaast ligt er aan de achterzijde nog een ruime slaapkamer, die dankzij het royale formaat uitstekend geschikt is als kinderkamer, maar ook als logeer- of werkkamer. Ook deze kamer is voorzien van een houten vloer en strak stucwerk.
Aan de voorzijde van de woning bevindt zich de derde slaapkamer. Deze lichte kamer is afgewerkt met een houten vloer. Het Franse balkon geeft de kamer een charmante uitstraling en biedt een fraai uitzicht over het plantsoen aan de voorzijde. Verder beschikt de kamer over praktische, wandbrede inbouwkasten en is zij ideaal te gebruiken als kinder- of werkkamer.
De badkamer is volledig betegeld en uitgerust met een ligbad, douchecabine, toilet, twee wastafels en hangend wandmeubel.
Tweede verdieping
Ook de tweede verdieping biedt veel ruimte. U komt boven op de overloop van deze etage, die toegang geeft tot twee slaapkamers en een bergkast met technische ruimte. De trap, overloop en de slaapkamer aan de voorzijde zijn afgewerkt met een siergrindvloer.
De vierde slaapkamer van deze woning ligt aan de voorzijde van deze verdieping. Dit is een sfeervolle kamer waarvan u uitizicht heeft over het plantsoen aan de voorzijde.
Aan de achterzijde van de woning vindt u de vijfde slaapkamer. Deze kamer is opvallend ruim en afgewerkt een houten vloer en strak stucwerk.
De technische ruimte biedt plaats aan de door NEST aangestuurde Multi-solar (zonneboiler) CV-installatie en de aansluiting naar de zonnepanelen.
Souterrain
Het souterrain is zowel vanaf de voorzijde als inpandig bereikbaar en is in 2025 vrijwel volledig gerenoveerd. Aan de voorkant is de ruimte toegankelijk via openslaande aluminium glazen deuren met veiligheidssloten.
De ruimte is strak afgewerkt met stucwerk wanden, elektra, isolatie en een nette tegelvloer. Dankzij de moderne afwerking is deze verdieping ideaal te gebruiken als gastenverblijf, kantoor, gym of zelfs home cinema. Ook de aansluiting voor de wasmachine is aanwezig. Een volwaardige verdieping met eindeloos veel mogelijkheden, die tevens uitstekend dienst kan doen als opberg- en wasruimte.
Tuin
De achtertuin is een echte eyecatcher en bestaat uit twee niveaus. Op het verhoogde gedeelte bevindt zich een ruim terras, afgewerkt met nette terrastegels en voorzien van elektra en wateraansluiting. Dit is de ideale plek om te loungen, barbecueën of gewoon heerlijk te ontspannen. Via een trap bereikt u het lager gelegen deel van de tuin, waar een mooi gazon en vaste beplanting zorgen voor een groene uitstraling. Daarnaast beschikt de tuin over een praktische achterom.
Bijzonderheden:
– De volledige woning is voorzien van HR++-glas
– Royale gezinswoning met 5 slaapkamers
– Multifunctioneel souterrain
– Lichte woonkamer met vloerverwarming
– Moderne keuken met bar en inbouwapparatuur
– Achtertuin op twee niveaus
– Vrij uitzicht over groen en speelvoorzieningen
– Gunstige ligging nabij scholen, winkels, uitvalswegen en natuur
– Volledig geïsoleerd en voorzien van elektrische zonneschermen
Een uniek familiehuis met volop ruimte, licht en mogelijkheden. Bent u benieuwd geworden? Plan dan snel een bezichtiging en ontdek of dit uw nieuwe thuis wordt!
ALGEMENE WERKWIJZE EN VOORWAARDEN:
De eigenaar van deze woning heeft Hypodomus Makelaars opdracht gegeven te bemiddelen bij de verkoop. Geheel vrijblijvend informeren wij je uitvoerig over de woning, over de financieringsmogelijkheden en de mogelijkheden van de verkoop van jouw eigen woning. Uiteraard is het aan te bevelen de deskundige hulp van een NVM-aankoopmakelaar in te schakelen.
Bieden
Wil je een bod op een woning doen? Uitsluitend de biedingen die in de digitale omgeving van MOVE.NL zijn geplaatst worden in behandeling genomen. Na het plannen van een bezichtiging ontvang je per e-mail gegevens inzake jouw MOVE.NL account. Is er een deadline voor een woning dan kun je dat terugzien in MOVE.NL. Na de deadline kunnen wij in het algemeen geen biedingen meer in behandeling nemen.
Zekerheden
Tot zekerheid voor de nakoming van de verplichtingen dient de koper, binnen uiterlijk 1 week na het definitief worden van de koopovereenkomst, een schriftelijke bankgarantie te stellen, c.q. een waarborgsom te storten ter hoogte van 10% van de koopsom. Verkoper beroept zich te allen tijde op het schriftelijkheidsvereiste bij de verkoop van zijn woning. Tevens is het bedrag voor een financieringsvoorbehoud dat in de koopovereenkomst opgenomen kan worden, niet hoger dan de vraagprijs van de woning.
Meetinstructie
De Meetinstructie is gebaseerd op de NEN2580. De Meetinstructie is bedoeld om een meer eenduidige manier van meten toe te passen voor het geven van een indicatie van de gebruiksoppervlakte. De Meetinstructie sluit verschillen in meetuitkomsten niet volledig uit, door bijvoorbeeld interpretatieverschillen, afrondingen of beperkingen bij het uitvoeren van de meting.
Aanbiedingsinformatie
De brochure is samengesteld om je een indruk te geven van het object. De informatie die opgenomen is in deze brochure is afkomstig van de verkoper en/of derden. Hoewel wij bij het samenstellen van de brochure zorgvuldig te werk gaan, kunnen geen rechten worden ontleend aan onjuistheden e.d. Deze informatie moet in combinatie met een bezichtiging van de woning worden beschouwd als een uitnodiging tot het doen van een bod of om in onderhandeling te treden. Deze informatie is door ons met de nodige zorgvuldigheid samengesteld. Wij ervaarden echter geen enkele aansprakelijkheid voor enige onvolledigheid, onjuistheid of anderszins, dan wel de gevolgen daarvan. Alle opgegeven maten en oppervlakten zijn indicatief. Van toepassing zijn de NVM voorwaarden.
Mondelinge-overeenstemming
Een mondelinge overeenstemming tussen een particuliere verkoper en een particuliere koper is niet rechtsgeldig. Met andere woorden: er is geen koop. Er is pas sprake van een rechtsgeldige koop als een particuliere verkoper en een particuliere koper een koopovereenkomst hebben ondertekend. Dit vloeit voort uit artikel 7:2 Burgerlijk Wetboek. Een bevestiging van de mondelinge overeenstemming per e-mail of een toegestuurd concept van de koopovereenkomst wordt niet gezien als een ‘ondertekende koopovereenkomst’. Wanneer er onderhandelingen worden aangegaan met een professionele partij en er wordt een mondelinge overeenstemming bereikt, wordt eveneens vastgehouden aan het
schriftelijkheidsvereiste.
Ouderdomsclausule (dit wordt uitsluitend gebruikt indien van toepassing)
Een ouderdomsclausule is een bepaling die door Hypodomus Makelaars wordt opgenomen in koopcontracten van woningen die ouder zijn dan 25 jaar. Deze clausule houdt in dat de koper erkent dat de woning een bepaalde ouderdom heeft en dat de kwaliteit van de woning daardoor mogelijk minder is dan van een nieuwere woning. Het wel of niet toevoegen van deze clausule is niet onderhandelbaar.
Niet-zelfbewoningsclausule (dit wordt uitsluitend gebruikt indien van toepassing)
Wanneer de verkoper recentelijk niet in de woning heeft gewoond, wordt een niet-zelfbewoningsclausule opgenomen in de koopovereenkomst. Deze clausule stelt dat de verkoper de woning nooit zelf heeft bewoond en daarom niet bekend is met de eigenschappen of mogelijke gebreken die bekend zouden zijn bij eigen gebruik. Dit betekent dat het risico van eventuele gebreken verschuift naar de koper. De koper is verantwoordelijk voor het uitvoeren van de benodigde onderzoeken. Het wel of niet toevoegen van deze clausule is niet onderhandelbaar.
Wil je meer weten over onze werkwijze, ga dan naar onze website:
www.hypodomus-eindhoven.nl















































