Over Gaspeldoornlaan 1A
Bijzondere splitlevel woning met luxe keuken, vijf kamers en souterrainIn de geliefde woonwijk Het Gegraaf in Valkenswaard staat deze verrassend ruime en volledig gemoderniseerde geschakelde woning. Een prachtige splitlevel woning met bijna 160 m² woonoppervlakte én volop multifunctionele leef- en werkruimtes (ruim 33 m²) tezamen vrijwel 200 m² aan leefruimte. Dankzij de vele vertrekken is deze woning ideaal voor een groot gezin, werken aan huis, praktijkruimte of voor wie simpelweg veel leefruimte wenst. De ligging is uiterst gunstig, met scholen, sportvoorzieningen, winkels, natuur,...
Kenmerken
Overdracht
- Status
- Beschikbaar
- Vraagprijs
- € 675.000,- k.k.
Bouwvorm
- Soort woning:
- Eengezinswoning
- Type woning:
- Geschakelde woning
- Kwaliteit woning:
- Goed tot uitstekend
- Bouwjaar:
- 1973
- Bouwvorm:
- Bestaande bouw
- Woonoppervlakte:
- 192 m2
- Perceeloppervlakte:
- 293 m2
- Externe bergruimte
- 9 m2
- Inhoud:
- 679 m3
- Aantal kamers:
- 6
- Aantal slaapkamers:
- 3
- C.V.-Ketel bouwjaar
- 2024
- C.V.-Ketel brandstof
- Gas
- C.V.-Ketel status
- Eigendom
Buitenruimte
- Hoofdtuin:
- Achtertuin
- Oppervlakte hoofdtuin:
- 90 m2
- Ligging hoofdtuin:
- Zuidwest
- Achterom:
- Ja
- Kwaliteit tuin:
- Normaal
Bergruimte
- Schuur / Berging
- Vrijstaand steen
Parkeergelegenheid
- Parkeerfaciliteiten:
- Op eigen terrein
Overig
- Onderhoud binnen:
- Goed tot uitstekend
- Onderhoud buiten:
- Goed tot uitstekend
- Huidige bestemming:
- Woonruimte
Kadastrale Gegevens
- Gemeente:
- Valkenswaard
- Sectie:
- E
- Perceelnummer:
- 2934
- Oppervlakte:
- 293 m2
- Eigendomssituatie:
- Volle eigendom
Omschrijving
Bijzondere splitlevel woning met luxe keuken, vijf kamers en souterrain
In de geliefde woonwijk Het Gegraaf in Valkenswaard staat deze verrassend ruime en volledig gemoderniseerde geschakelde woning. Een prachtige splitlevel woning met bijna 160 m² woonoppervlakte én volop multifunctionele leef- en werkruimtes (ruim 33 m²) tezamen vrijwel 200 m² aan leefruimte. Dankzij de vele vertrekken is deze woning ideaal voor een groot gezin, werken aan huis, praktijkruimte of voor wie simpelweg veel leefruimte wenst. De ligging is uiterst gunstig, met scholen, sportvoorzieningen, winkels, natuur, speelgelegenheden en uitvalswegen richting Eindhoven, Veldhoven en de High Tech Campus allemaal in de directe nabijheid. Rust en wooncomfort gaan hier perfect samen.
De woning is in de afgelopen jaren grondig gemoderniseerd en biedt onder meer een royale living met doorkijkhaard, een luxe leefkeuken met aansluitende eetkamer, een groot souterrain én een multifunctionele ruimte op de begane grond met eigen entree. Op de eerste verdieping bevinden zich daarnaast drie comfortabele slaapkamers.
Indeling
U betreedt de woning via een ruime hal. Vanuit hier heeft u toegang tot de toiletruimte, de meterkast, de trap naar de eerste verdieping en de trap naar het souterrain.
De toiletruimte is volledig betegeld en is voorzien van zwarte accenten en inbouwspots, wat direct een luxe uitstraling geeft.
Vanuit de hal loopt u aan de linkerzijde door naar de woonkamer.
U komt binnen in de ruime, moderne woonkamer die direct sfeer en warmte uitstraalt. De houten vloer vormt samen met de zwarte kozijnen en buiten jaloezieën een stijlvol geheel. Een prachtige houthaard van Boley verdeelt subtiel de ruimte en zorgt voor een warme, uitnodigende ambiance, perfect voor koude dagen en donkere avonden. De woonkamer biedt voldoende plaats voor meerdere zitopstellingen en is bovendien voorzien van een maatwerk cinemawall.
De royale leefkeuken met apparatuur van Gaggenau is een absolute blikvanger. Uitgevoerd in een moderne beige kleurstelling en voorzien van een antraciet tegelvloer met vloerverwarming, combineert deze keuken stijl en comfort op perfecte wijze. De keuken is volledig uitgerust met een composiet werkblad, 6-pits gasfornuis met oven, afzuigkap, Quooker, vaatwasser, combi-oven/magnetron en een losse Amerikaanse koel-/vriescombinatie. In het hart van de ruimte zorgt een open haard voor een warme, gezellige sfeer en biedt het een prachtig uitzicht op de tuin.
Aan de achterzijde bevindt zich de royale eetkamer met grote schuifpui naar de tuin. Afgewerkt met inbouwspots en ruim genoeg voor een grote eettafel, is dit de perfecte plek voor gezellige diners en lange avonden met familie en vrienden.
Vanuit de keuken loopt u door naar een royale, multifunctionele ruimte met een eigen entree. Deze veelzijdige ruimte is ideaal te gebruiken als kantoor of praktijk aan huis, gastenverblijf of hobbykamer. De ruimte is modern en stijlvol afgewerkt met een antracietkleurige tegelvloer voorzien van vloerverwarming, inbouwspots en maatwerkkasten. Daarnaast is er een op maat gemaakte cinemawall aanwezig met een soundbarinstallatie, welke ter overname wordt aangeboden. Ook vindt u hier de aansluiting voor de wasmachine.
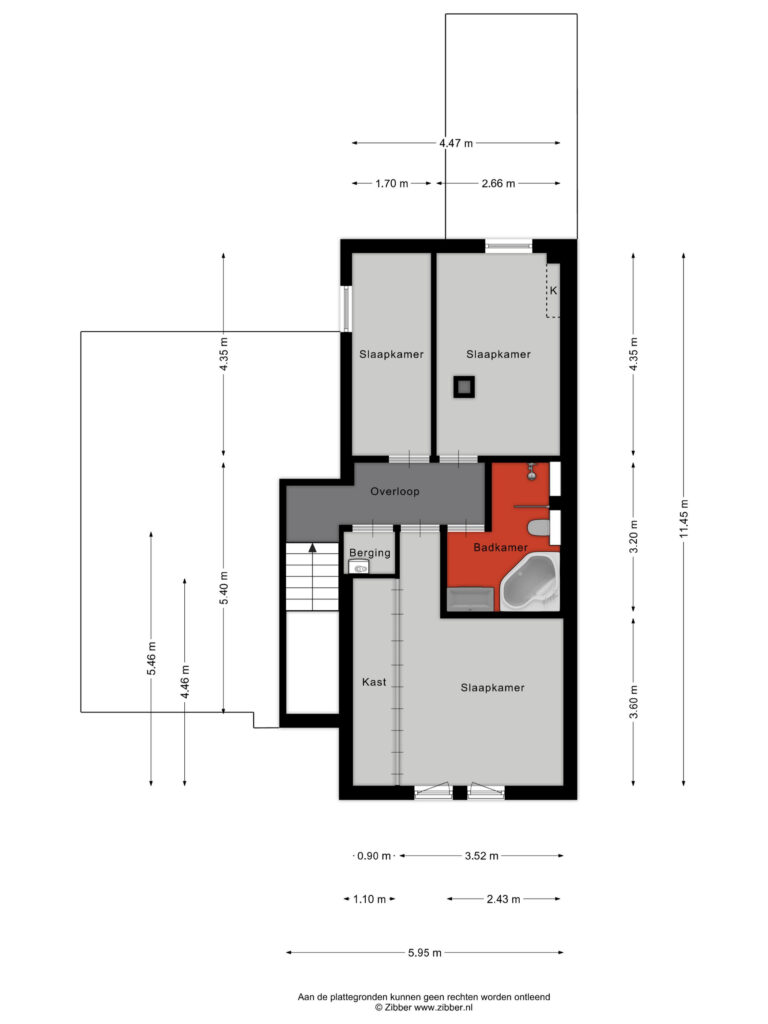
Slaapkamers
Op de eerste verdieping komt u op de overloop, die net als de rest van deze verdieping is afgewerkt met een trendy walvisgraat PVC-vloer en stijlvolle zwarte binnendeuren. Vanaf de overloop heeft u toegang tot drie slaapkamers, een berging met de CV-opstelling en de badkamer.
De grootste slaapkamer, tevens master bedroom, ligt aan de voorzijde van de woning. Deze royale kamer is voorzien van maatwerkkasten, inbouwspots en een Frans balkon, met grote ramen die zijn uitgevoerd in kunststof met draai-/kiepramen en HR++ beglazing.
Aan de achterzijde bevinden zich twee slaapkamers. De ruime tweede slaapkamer is licht en fraai van formaat, met voldoende plek voor een groot bed en een kast, waardoor dit een ideale kinderkamer is. De derde slaapkamer is iets compacter maar eveneens licht en prettig van sfeer, perfect geschikt als logeerkamer, studeer- of werkkamer. Ook deze kamers beschikken over kunststof raampartijen met draai-/kiepramen en HR++ beglazing.
Badkamer
De badkamer is volledig betegeld en voorzien van een dubbele wastafel in meubel, ruim ligbad, inloopdouche, toilet, designradiator, inbouwspots en mechanische ventilatie.
Souterrain
De woning beschikt tevens over een verrassend ruim souterrain. Deze veelzijdige ruimte is te bereiken vanuit de eetkamer, een paar treden naar beneden. Perfect te gebruiken als extra (slaap)kamer, home cinema of kantoor. De afwerking is modern en stijlvol, met een antraciet tegelvloer en strak stucwerk. Daarnaast zijn er twee extra bergingsruimtes aanwezig, waaronder een inpandige wijnkelder. Het souterrain is tot aan maaiveldhoogte geïmpregneerd t.b.v. vocht.
Tuin
De voortuin is verzorgd aangelegd met volwassen beplanting en beschikt over een royale oprit met parkeermogelijkheid voor meerdere auto’s. Via een stenen trap bereikt u de entree van de woning.
De achtertuin is ruim en groen ingericht, met een gazon, volwassen beplanting en sierbestrating. Achterin staat een stenen berging, ideaal voor het stallen van fietsen, gereedschap of andere spullen.
Bijzonderheden:
• Bijna 200 m² aan leefruimte
• Gehele woning voorzien van alarmsysteem
• Nieuwe Cv Ketel geplaatst in 2025
• Voorzien van 13 zonnepanelen
• Volledig gemoderniseerd en instapklaar
• Royale living met op maat gemaakte cinewall en kasten
• Luxe keuken met Gaggenau apparatuur
• Multifunctionele ruimte met eigen entree, ideaal voor kantoor, praktijk of gastenverblijf
• Ruim souterrain met berging en inpandige wijnkelder
• Voortuin met royale oprit geschikt voor meerdere auto’s
• Kunststof kozijnen met HR++ belglazing
• In afwijking van het meetrapport: souterrain mag officieel niet worden meegenomen als woonoppervlakte aangezien de stahoogte minder dan 2m bedraagt. Echter kan dit wel als zodanig worden meegenomen.
Een bijzondere woning die opvalt door ruimte, afwerking en veelzijdigheid. Ervaar het zelf en plan vandaag nog een bezichtiging aan de Gaspeldoornlaan 1A!
ALGEMENE WERKWIJZE EN VOORWAARDEN:
De eigenaar van deze woning heeft Hypodomus Makelaars opdracht gegeven te bemiddelen bij de verkoop. Geheel vrijblijvend informeren wij je uitvoerig over de woning, over de financieringsmogelijkheden en de mogelijkheden van de verkoop van jouw eigen woning. Uiteraard is het aan te bevelen de deskundige hulp van een NVM-aankoopmakelaar in te schakelen.
Bieden
Wil je een bod op een woning doen? Uitsluitend de biedingen die in de digitale omgeving van MOVE.NL zijn geplaatst worden in behandeling genomen. Na het plannen van een bezichtiging ontvang je per e-mail gegevens inzake jouw MOVE.NL account. Is er een deadline voor een woning dan kun je dat terugzien in MOVE.NL. Na de deadline kunnen wij in het algemeen geen biedingen meer in behandeling nemen.
Zekerheden
Tot zekerheid voor de nakoming van de verplichtingen dient de koper, binnen uiterlijk 1 week na het definitief worden van de koopovereenkomst, een schriftelijke bankgarantie te stellen, c.q. een waarborgsom te storten ter hoogte van 10% van de koopsom. Verkoper beroept zich te allen tijde op het schriftelijkheidsvereiste bij de verkoop van zijn woning. Tevens is het bedrag voor een financieringsvoorbehoud dat in de koopovereenkomst opgenomen kan worden, niet hoger dan de vraagprijs van de woning.
Meetinstructie
De Meetinstructie is gebaseerd op de NEN2580. De Meetinstructie is bedoeld om een meer eenduidige manier van meten toe te passen voor het geven van een indicatie van de gebruiksoppervlakte. De Meetinstructie sluit verschillen in meetuitkomsten niet volledig uit, door bijvoorbeeld interpretatieverschillen, afrondingen of beperkingen bij het uitvoeren van de meting.
Aanbiedingsinformatie
De brochure is samengesteld om je een indruk te geven van het object. De informatie die opgenomen is in deze brochure is afkomstig van de verkoper en/of derden. Hoewel wij bij het samenstellen van de brochure zorgvuldig te werk gaan, kunnen geen rechten worden ontleend aan onjuistheden e.d. Deze informatie moet in combinatie met een bezichtiging van de woning worden beschouwd als een uitnodiging tot het doen van een bod of om in onderhandeling te treden. Deze informatie is door ons met de nodige zorgvuldigheid samengesteld. Wij ervaarden echter geen enkele aansprakelijkheid voor enige onvolledigheid, onjuistheid of anderszins, dan wel de gevolgen daarvan. Alle opgegeven maten en oppervlakten zijn indicatief. Van toepassing zijn de NVM voorwaarden.
Mondelinge-overeenstemming
Een mondelinge overeenstemming tussen een particuliere verkoper en een particuliere koper is niet rechtsgeldig. Met andere woorden: er is geen koop. Er is pas sprake van een rechtsgeldige koop als een particuliere verkoper en een particuliere koper een koopovereenkomst hebben ondertekend. Dit vloeit voort uit artikel 7:2 Burgerlijk Wetboek. Een bevestiging van de mondelinge overeenstemming per e-mail of een toegestuurd concept van de koopovereenkomst wordt niet gezien als een ‘ondertekende koopovereenkomst’. Wanneer er onderhandelingen worden aangegaan met een professionele partij en er wordt een mondelinge overeenstemming bereikt, wordt eveneens vastgehouden aan het
schriftelijkheidsvereiste.
Ouderdomsclausule (dit wordt uitsluitend gebruikt indien van toepassing)
Een ouderdomsclausule is een bepaling die door Hypodomus Makelaars wordt opgenomen in koopcontracten van woningen die ouder zijn dan 25 jaar. Deze clausule houdt in dat de koper erkent dat de woning een bepaalde ouderdom heeft en dat de kwaliteit van de woning daardoor mogelijk minder is dan van een nieuwere woning. Het wel of niet toevoegen van deze clausule is niet onderhandelbaar.
Niet-zelfbewoningsclausule (dit wordt uitsluitend gebruikt indien van toepassing)
Wanneer de verkoper recentelijk niet in de woning heeft gewoond, wordt een niet-zelfbewoningsclausule opgenomen in de koopovereenkomst. Deze clausule stelt dat de verkoper de woning nooit zelf heeft bewoond en daarom niet bekend is met de eigenschappen of mogelijke gebreken die bekend zouden zijn bij eigen gebruik. Dit betekent dat het risico van eventuele gebreken verschuift naar de koper. De koper is verantwoordelijk voor het uitvoeren van de benodigde onderzoeken. Het wel of niet toevoegen van deze clausule is niet onderhandelbaar.
Wil je meer weten over onze werkwijze, ga dan naar onze website:
www.hypodomus-eindhoven.nl


















































