Over Waterstad
Deze moderne halfvrijstaande woning aan Waterstad 61 in Meerhoven is er één waar alles klopt. Comfort, luxe afwerking en duurzaamheid komen hier perfect samen. Met drie volwaardige slaapkamers, vloerverwarming door de hele woning en 10 zonnepanelen woon je hier niet alleen heerlijk, maar ook energiezuinig en toekomstgericht. De twee tuinen bieden volop privacy en maken het buitenleven net zo prettig als binnen. Dit is zo’n woning waar je direct verliefd op wordt. Wonen in Meerhoven betekent wonen in rust en ruimte, met alle voorzieningen dichtbij. Op korte afstand vind je het...
Kenmerken
Overdracht
- Status
- Beschikbaar
- Vraagprijs
- € 850.000,- k.k.
Bouwvorm
- Soort woning:
- Villa
- Type woning:
- Halfvrijstaande woning
- Kwaliteit woning:
- Uitstekend
- Bouwjaar:
- 2018
- Bouwvorm:
- Bestaande bouw
- Woonoppervlakte:
- 174 m2
- Perceeloppervlakte:
- 252 m2
- Externe bergruimte
- 0 m2
- Inhoud:
- 645 m3
- Aantal kamers:
- 4
- Aantal slaapkamers:
- 3
- C.V.-Ketel:
- Intergas Compact
- C.V.-Ketel bouwjaar
- 2018
- C.V.-Ketel brandstof
- Gas
- C.V.-Ketel status
- Eigendom
Buitenruimte
- Hoofdtuin:
- Achtertuin
- Oppervlakte hoofdtuin:
- 36 m2
- Ligging hoofdtuin:
- Zuidwest
- Achterom:
- Ja
- Kwaliteit tuin:
- Fraai aangelegd
Bergruimte
- Schuur / Berging
- Inpandig
Parkeergelegenheid
- Parkeerfaciliteiten:
- Openbaar parkeren, Op eigen terrein
Overig
- Onderhoud binnen:
- Uitstekend
- Onderhoud buiten:
- Uitstekend
- Huidige bestemming:
- Woonruimte
Kadastrale Gegevens
- Gemeente:
- Strijp
- Sectie:
- G
- Perceelnummer:
- 3614
- Oppervlakte:
- 252
- Eigendomssituatie:
- VOLLE_EIGENDOM
- Isolatie:
- Volledig geïsoleerd
Omschrijving
Deze moderne halfvrijstaande woning aan Waterstad 61 in Meerhoven is er één waar alles klopt. Comfort, luxe afwerking en duurzaamheid komen hier perfect samen. Met drie volwaardige slaapkamers, vloerverwarming door de hele woning en 10 zonnepanelen woon je hier niet alleen heerlijk, maar ook energiezuinig en toekomstgericht. De twee tuinen bieden volop privacy en maken het buitenleven net zo prettig als binnen. Dit is zo’n woning waar je direct verliefd op wordt.
Wonen in Meerhoven betekent wonen in rust en ruimte, met alle voorzieningen dichtbij. Op korte afstand vind je het winkelcentrum voor je dagelijkse boodschappen. Ook qua bereikbaarheid zit je hier perfect. Met de auto ben je binnen enkele minuten op de A2 richting Eindhoven, Tilburg en Den Bosch. Het openbaar vervoer is goed geregeld met snelle verbindingen naar het centrum. Scholen, kinderopvang en sportvoorzieningen liggen om de hoek. Daarnaast is er volop groen en water in de buurt om te wandelen of te ontspannen.
Indeling
Begane grond
Via de verzorgde entree kom je in de hal met garderobe en moderne toiletruimte.
De woonkamer is ruim en licht en direct prettig om in te zijn. Aan de voorzijde vind je het zitgedeelte met een sfeervolle gashaard, een plek waar je echt tot rust komt. In het midden ligt de eethoek, ideaal voor lange avonden tafelen.
De luxe open keuken met een kookeiland vormt het hart van de woning. Hier is gekozen voor kwaliteit en comfort, met onder andere een Bora kookplaat, Gaggenau oven en Quooker. Alles is strak afgewerkt en er is volop bergruimte.
De gietvloer met vloerverwarming zorgt voor een moderne uitstraling en veel wooncomfort. Dankzij de grote raampartijen heb je een mooie verbinding met buiten en veel lichtinval.
Via de keuken bereik je de bijkeuken met een gezellige barista hoek en extra bergruimte. Praktisch en sfeervol tegelijk.
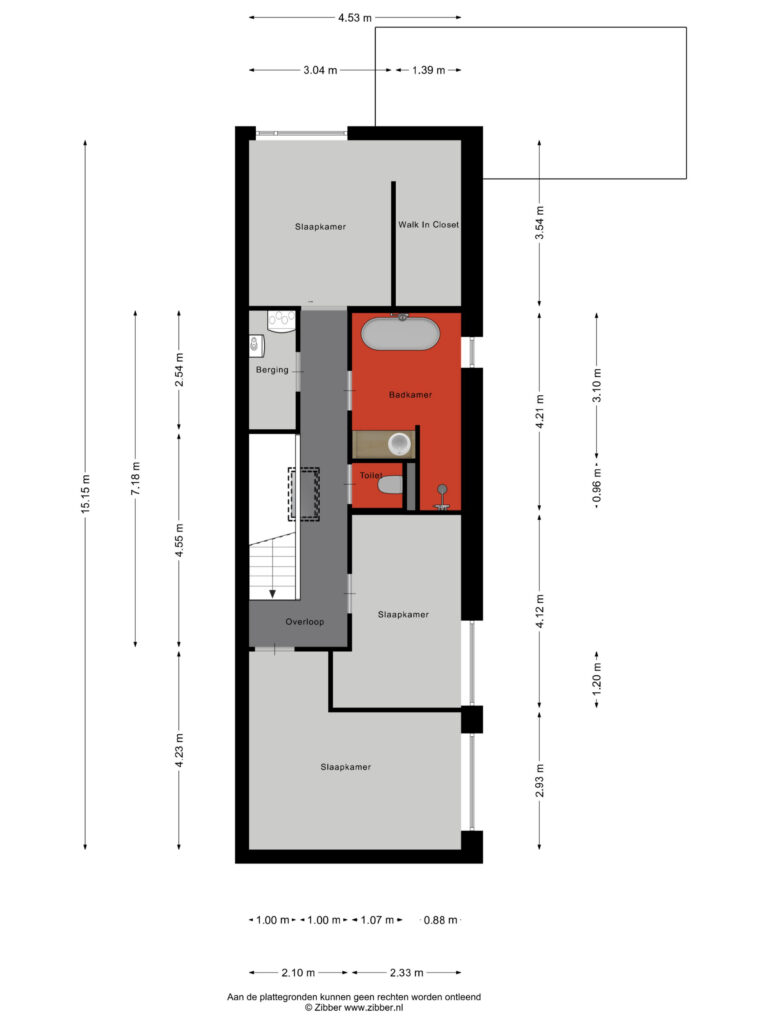
Eerste verdieping
De eerste verdieping is afgewerkt met een visgraat parketvloer en is voorzien van vloerverwarming. Hier vind je drie royale slaapkamers. De ouderslaapkamer ligt aan de achterzijde en beschikt over een fijne walk-in-closet.
De badkamer is luxe uitgevoerd met een vrijstaand bad, inloopdouche en een wastafelmeubel. Alles netjes afgewerkt en direct te gebruiken. De toiletruimte is separaat.
Daarnaast is er op deze verdieping een aparte ruimte met de wasmachineaansluiting en de opstelling van de c.v.-ketel.
Tuin
Wat deze woning extra bijzonder maakt zijn de twee tuinen. De zijtuin is een rustige plek direct aan de keuken, ideaal voor een kop koffie in de ochtend of een borrel in de avond. Hier zit je echt privé en heb je ook een handige achterom. De inpandige berging zorgt voor extra gemak.
De achtertuin ligt op het zuidwesten, waardoor je hier volop zon hebt in de middag en avond. Een fijne plek om te genieten van het buitenleven.
Bijzonderheden
– Energielabel A+
– 10 zonnepanelen
– Vloerverwarming gehele woning
– Drie slaapkamers waarvan één met een walk-in-closet
– Luxe keuken met hoogwaardige apparatuur
– Twee privacyvolle tuinen met zon en schaduw
– Sfeervolle gashaard
– Parkeren op eigen terrein
– Ontworpen door FAAM architecten
– Let op: de berging is meegeteld bij het woonoppervlakte. Indien de deur vervangen wordt door een raam of een glazen deur, betreft dit ook daadwerkelijk woonoppervlakte.
ALGEMENE WERKWIJZE EN VOORWAARDEN:
De eigenaar van deze woning heeft Hypodomus Makelaars opdracht gegeven te bemiddelen bij de verkoop. Geheel vrijblijvend informeren wij je uitvoerig over de woning, over de financieringsmogelijkheden en de mogelijkheden van de verkoop van jouw eigen woning. Uiteraard is het aan te bevelen de deskundige hulp van een NVM-aankoopmakelaar in te schakelen.
Bieden
Wil je een bod op een woning doen? Uitsluitend de biedingen die in de digitale omgeving van MOVE.NL zijn geplaatst worden in behandeling genomen. Na het plannen van een bezichtiging ontvang je per e-mail gegevens inzake jouw MOVE.NL account. Is er een deadline voor een woning dan kun je dat terugzien in MOVE.NL. Na de deadline kunnen wij in het algemeen geen biedingen meer in behandeling nemen.
Zekerheden
Tot zekerheid voor de nakoming van de verplichtingen dient de koper, binnen uiterlijk 1 week na het definitief worden van de koopovereenkomst, een schriftelijke bankgarantie te stellen, c.q. een waarborgsom te storten ter hoogte van 10% van de koopsom. Verkoper beroept zich te allen tijde op het schriftelijkheidsvereiste bij de verkoop van zijn woning. Tevens is het bedrag voor een financieringsvoorbehoud dat in de koopovereenkomst opgenomen kan worden, niet hoger dan de vraagprijs van de woning.
Meetinstructie
De Meetinstructie is gebaseerd op de NEN2580. De Meetinstructie is bedoeld om een meer eenduidige manier van meten toe te passen voor het geven van een indicatie van de gebruiksoppervlakte. De Meetinstructie sluit verschillen in meetuitkomsten niet volledig uit, door bijvoorbeeld interpretatieverschillen, afrondingen of beperkingen bij het uitvoeren van de meting.
Aanbiedingsinformatie
De brochure is samengesteld om je een indruk te geven van het object. De informatie die opgenomen is in deze brochure is afkomstig van de verkoper en/of derden. Hoewel wij bij het samenstellen van de brochure zorgvuldig te werk gaan, kunnen geen rechten worden ontleend aan onjuistheden e.d. Deze informatie moet in combinatie met een bezichtiging van de woning worden beschouwd als een uitnodiging tot het doen van een bod of om in onderhandeling te treden. Deze informatie is door ons met de nodige zorgvuldigheid samengesteld. Wij ervaarden echter geen enkele aansprakelijkheid voor enige onvolledigheid, onjuistheid of anderszins, dan wel de gevolgen daarvan. Alle opgegeven maten en oppervlakten zijn indicatief. Van toepassing zijn de NVM voorwaarden.
Mondelinge-overeenstemming
Een mondelinge overeenstemming tussen een particuliere verkoper en een particuliere koper is niet rechtsgeldig. Met andere woorden: er is geen koop. Er is pas sprake van een rechtsgeldige koop als een particuliere verkoper en een particuliere koper een koopovereenkomst hebben ondertekend. Dit vloeit voort uit artikel 7:2 Burgerlijk Wetboek. Een bevestiging van de mondelinge overeenstemming per e-mail of een toegestuurd concept van de koopovereenkomst wordt niet gezien als een ‘ondertekende koopovereenkomst’. Wanneer er onderhandelingen worden aangegaan met een professionele partij en er wordt een mondelinge overeenstemming bereikt, wordt eveneens vastgehouden aan het
schriftelijkheidsvereiste.
Ouderdomsclausule (dit wordt uitsluitend gebruikt indien van toepassing)
Een ouderdomsclausule is een bepaling die door Hypodomus Makelaars wordt opgenomen in koopcontracten van woningen die ouder zijn dan 25 jaar. Deze clausule houdt in dat de koper erkent dat de woning een bepaalde ouderdom heeft en dat de kwaliteit van de woning daardoor mogelijk minder is dan van een nieuwere woning. Het wel of niet toevoegen van deze clausule is niet onderhandelbaar.
Niet-zelfbewoningsclausule (dit wordt uitsluitend gebruikt indien van toepassing)
Wanneer de verkoper recentelijk niet in de woning heeft gewoond, wordt een niet-zelfbewoningsclausule opgenomen in de koopovereenkomst. Deze clausule stelt dat de verkoper de woning nooit zelf heeft bewoond en daarom niet bekend is met de eigenschappen of mogelijke gebreken die bekend zouden zijn bij eigen gebruik. Dit betekent dat het risico van eventuele gebreken verschuift naar de koper. De koper is verantwoordelijk voor het uitvoeren van de benodigde onderzoeken. Het wel of niet toevoegen van deze clausule is niet onderhandelbaar.
Wil je meer weten over onze werkwijze, ga dan naar onze website:
www.hypodomus-eindhoven.nl
Kortom, een instapklare en moderne woning op een toplocatie in Meerhoven. Plan een bezichtiging en ervaar zelf de ruimte, het comfort en de kwaliteit van deze woning!


