Over Striboshof 9
Op zoek naar een jonge woning waar je de komende jaren geen omkijken naar hebt. In het fijne Budel-Schoot staat deze gasloze tussenwoning met energielabel A++++, klaar voor nieuwe bewoners. Een huis waar comfort, ruimte en duurzaamheid samenkomen. Gelegen in een rustige woonwijk met veel jonge gezinnen, speelvoorzieningen in de buurt en alle dagelijkse faciliteiten binnen handbereik. Via de uitvalswegen ben je zo onderweg richting Budel, Weert of Eindhoven.Begane grond Via de ruime entree stap je de woning binnen. Hier heb je direct toegang tot de meterkast, het toilet, de trap naar boven...
Kenmerken
Overdracht
- Status
- Beschikbaar
- Vraagprijs
- € 375.000,- k.k.
Bouwvorm
- Soort woning:
- Eengezinswoning
- Type woning:
- Tussenwoning
- Kwaliteit woning:
- Goed tot uitstekend
- Bouwjaar:
- 2023
- Bouwvorm:
- Bestaande bouw
- Woonoppervlakte:
- 104 m2
- Perceeloppervlakte:
- 85 m2
- Externe bergruimte
- 0 m2
- Inhoud:
- 369 m3
- Aantal kamers:
- 5
- Aantal slaapkamers:
- 4
Buitenruimte
- Hoofdtuin:
- Achtertuin
- Oppervlakte hoofdtuin:
- 33 m2
- Ligging hoofdtuin:
- Oost
- Achterom:
- Ja
- Kwaliteit tuin:
- Verzorgd
Bergruimte
- Schuur / Berging
- Vrijstaand hout
Parkeergelegenheid
- Parkeerfaciliteiten:
- Openbaar parkeren
Overig
- Onderhoud binnen:
- Goed tot uitstekend
- Onderhoud buiten:
- Goed tot uitstekend
- Huidige bestemming:
- Woonruimte
Kadastrale Gegevens
- Gemeente:
- Budel
- Sectie:
- D
- Perceelnummer:
- 5955
- Oppervlakte:
- 85 m2
- Eigendomssituatie:
- Volle eigendom
- Isolatie:
- Dakisolatie, Muurisolatie, Vloerisolatie, Volledig geïsoleerd
Omschrijving
Op zoek naar een jonge woning waar je de komende jaren geen omkijken naar hebt.
In het fijne Budel-Schoot staat deze gasloze tussenwoning met energielabel A++++, klaar voor nieuwe bewoners. Een huis waar comfort, ruimte en duurzaamheid samenkomen. Gelegen in een rustige woonwijk met veel jonge gezinnen, speelvoorzieningen in de buurt en alle dagelijkse faciliteiten binnen handbereik. Via de uitvalswegen ben je zo onderweg richting Budel, Weert of Eindhoven.
Begane grond
Via de ruime entree stap je de woning binnen. Hier heb je direct toegang tot de meterkast, het toilet, de trap naar boven en de woonkamer. Alles voelt verzorgd en logisch ingedeeld. Het toilet is half betegeld en uitgevoerd met een wandcloset en fonteintje.
De woonkamer is een fijne leefruimte waar licht en ruimte samenkomen. De grote pui aan de achterzijde zorgt voor veel daglicht en een prettige verbinding met de tuin. De gehele begane grond is afgewerkt met een tegelvloer met vloerverwarming en vloerkoeling, wat het hele jaar door zorgt voor een aangename temperatuur. Onder de trap bevindt zich een praktische bergkast, ideaal voor voorraad en huishoudelijke spullen.
De open keuken in hoekopstelling vormt een mooi geheel met de woonkamer. Het natuurstenen werkblad geeft de keuken een strakke uitstraling en de aanwezige inbouwapparatuur zoals de inductiekookplaat, combi oven, vaatwasser en koel vriescombinatie maken koken hier comfortabel en praktisch. De grote spoelbak met kraan voorzien van warmwater boiler is een fijn detail in het dagelijks gebruik.
Eerste verdieping
Op de eerste verdieping kom je uit op een ruime overloop die toegang geeft tot drie slaapkamers en de badkamer. De slaapkamers zijn licht en netjes afgewerkt met laminaatvloeren, strak gestucte wanden en plafonds en grote raampartijen met kunststof kozijnen. Een prettig pluspunt is dat elke slaapkamer afzonderlijk te regelen is qua temperatuur van de vloerverwarming en vloerkoeling. Dat maakt het wonen hier extra comfortabel.
De badkamer is modern en licht uitgevoerd. Je beschikt hier over een inloopdouche, wandcloset en een badkamermeubel met waskom en spiegelkast. Een fijne ruimte om de dag te beginnen of juist rustig af te sluiten.
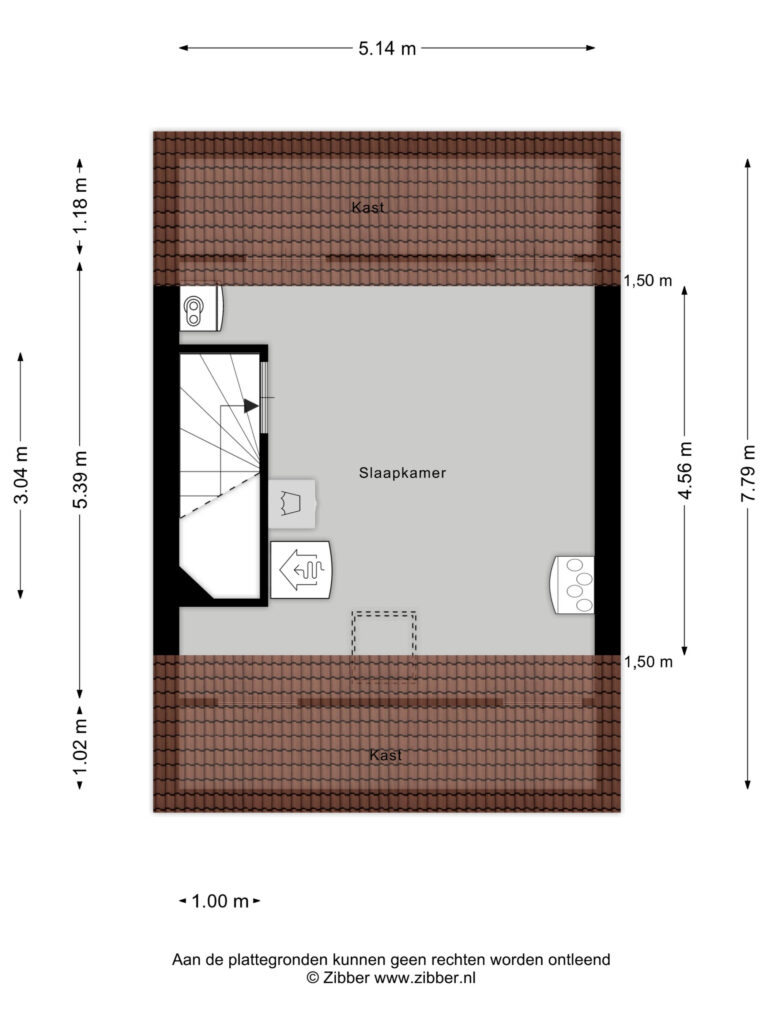
Tweede verdieping
Via een vaste trap bereik je de tweede verdieping. Deze verdieping is verrassend ruim en afgesloten met een loopdeur. Dankzij het grote dakraam is er veel daglicht en de ruimte leent zich uitstekend als extra slaapkamer, werkkamer of hobbyruimte. De knieschotten bieden extra bergruimte en houden de verdieping overzichtelijk.
Op deze verdieping bevinden zich ook de technische installaties zoals de lucht water warmtepomp, de WTW-installatie en de omvormer van de zonnepanelen. Daarnaast zijn hier de aansluitingen voor de wasmachine en droger te vinden, netjes uit het zicht maar praktisch geplaatst.
Tuin
De achtertuin is gelegen op het oosten en is een fijne plek om van de ochtendzon te genieten. De tuin is ingericht met een betegeld terras en een looppad naar de achterom. Achter in de tuin staat een houten berging. Hier bevindt zich ook de buitenunit van de warmtepomp, netjes weggewerkt in een suskast voor geluidsdemping.
Algemeen
– In de tuin bevindt zich een waterkraan en in de berging is een 220V-aansluiting aanwezig
– Jonge, gasloze tussenwoning met energielabel A++++
– Comfortabel wonen dankzij vloerverwarming en vloerkoeling in de gehele woning
– Voorzien van een lucht-waterwarmtepomp en zonnepanelen
– Drie slaapkamers en een ruime, multifunctionele tweede verdieping
– Gelegen in een rustige woonwijk in Budel-Schoot, met alle voorzieningen in de directe omgeving
ALGEMENE WERKWIJZE EN VOORWAARDEN:
De eigenaar van deze woning heeft Hypodomus Makelaars opdracht gegeven te bemiddelen bij de verkoop. Geheel vrijblijvend informeren wij je uitvoerig over de woning, over de financieringsmogelijkheden en de mogelijkheden van de verkoop van jouw eigen woning. Uiteraard is het aan te bevelen de deskundige hulp van een NVM-aankoopmakelaar in te schakelen.
Bieden
Wil je een bod op een woning doen? Uitsluitend de biedingen die in de digitale omgeving van MOVE.NL zijn geplaatst worden in behandeling genomen. Na het plannen van een bezichtiging ontvang je per e-mail gegevens inzake jouw MOVE.NL account. Is er een deadline voor een woning dan kun je dat terugzien in MOVE.NL. Na de deadline kunnen wij in het algemeen geen biedingen meer in behandeling nemen.
Zekerheden
Tot zekerheid voor de nakoming van de verplichtingen dient de koper, binnen uiterlijk 1 week na het definitief worden van de koopovereenkomst, een schriftelijke bankgarantie te stellen, c.q. een waarborgsom te storten ter hoogte van 10% van de koopsom. Verkoper beroept zich te allen tijde op het schriftelijkheidsvereiste bij de verkoop van zijn woning. Tevens is het bedrag voor een financieringsvoorbehoud dat in de koopovereenkomst opgenomen kan worden, niet hoger dan de vraagprijs van de woning.
Meetinstructie
De Meetinstructie is gebaseerd op de NEN2580. De Meetinstructie is bedoeld om een meer eenduidige manier van meten toe te passen voor het geven van een indicatie van de gebruiksoppervlakte. De Meetinstructie sluit verschillen in meetuitkomsten niet volledig uit, door bijvoorbeeld interpretatieverschillen, afrondingen of beperkingen bij het uitvoeren van de meting.
Aanbiedingsinformatie
De brochure is samengesteld om je een indruk te geven van het object. De informatie die opgenomen is in deze brochure is afkomstig van de verkoper en/of derden. Hoewel wij bij het samenstellen van de brochure zorgvuldig te werk gaan, kunnen geen rechten worden ontleend aan onjuistheden e.d. Deze informatie moet in combinatie met een bezichtiging van de woning worden beschouwd als een uitnodiging tot het doen van een bod of om in onderhandeling te treden. Deze informatie is door ons met de nodige zorgvuldigheid samengesteld. Wij ervaarden echter geen enkele aansprakelijkheid voor enige onvolledigheid, onjuistheid of anderszins, dan wel de gevolgen daarvan. Alle opgegeven maten en oppervlakten zijn indicatief. Van toepassing zijn de NVM voorwaarden.
Mondelinge-overeenstemming
Een mondelinge overeenstemming tussen een particuliere verkoper en een particuliere koper is niet rechtsgeldig. Met andere woorden: er is geen koop. Er is pas sprake van een rechtsgeldige koop als een particuliere verkoper en een particuliere koper een koopovereenkomst hebben ondertekend. Dit vloeit voort uit artikel 7:2 Burgerlijk Wetboek. Een bevestiging van de mondelinge overeenstemming per e-mail of een toegestuurd concept van de koopovereenkomst wordt niet gezien als een ‘ondertekende koopovereenkomst’. Wanneer er onderhandelingen worden aangegaan met een professionele partij en er wordt een mondelinge overeenstemming bereikt, wordt eveneens vastgehouden aan het
schriftelijkheidsvereiste.
Ouderdomsclausule (dit wordt uitsluitend gebruikt indien van toepassing)
Een ouderdomsclausule is een bepaling die door Hypodomus Makelaars wordt opgenomen in koopcontracten van woningen die ouder zijn dan 25 jaar. Deze clausule houdt in dat de koper erkent dat de woning een bepaalde ouderdom heeft en dat de kwaliteit van de woning daardoor mogelijk minder is dan van een nieuwere woning. Het wel of niet toevoegen van deze clausule is niet onderhandelbaar.
Niet-zelfbewoningsclausule (dit wordt uitsluitend gebruikt indien van toepassing)
Wanneer de verkoper recentelijk niet in de woning heeft gewoond, wordt een niet-zelfbewoningsclausule opgenomen in de koopovereenkomst. Deze clausule stelt dat de verkoper de woning nooit zelf heeft bewoond en daarom niet bekend is met de eigenschappen of mogelijke gebreken die bekend zouden zijn bij eigen gebruik. Dit betekent dat het risico van eventuele gebreken verschuift naar de koper. De koper is verantwoordelijk voor het uitvoeren van de benodigde onderzoeken. Het wel of niet toevoegen van deze clausule is niet onderhandelbaar.
Wil je meer weten over onze werkwijze, ga dan naar onze website:
www.hypodomus-eindhoven.nl

















































