Over Rubensstraat 3
Scherp geprijsde tussenwoning op loopafstand van het centrum! Ben je op zoek naar een woning die je helemaal naar eigen smaak kunt maken, op een centrale plek in Eindhoven? Dan is deze tussenwoning aan de Rubenstraat absoluut het bekijken waard. De woning beschikt over een tuingerichte woonkamer, halfopen keuken, drie slaapkamers en een stadstuin op het zuiden met een berging. Ideaal voor de handige doe-het-zelver die kansen ziet! De woning is gelegen aan een karakteristieke straat in de wijk Lakerlopen in Tongelre, binnen de Ring en op loopafstand van winkelcentrum Haagdijk met o.a. een...
Kenmerken
Overdracht
- Status
- Verkocht onder voorbehoud
- Vraagprijs
- € 310.000,- k.k.
Bouwvorm
- Soort woning:
- Eengezinswoning
- Type woning:
- Tussenwoning
- Kwaliteit woning:
- Slect
- Bouwjaar:
- 1920
- Bouwvorm:
- Bestaande bouw
- Woonoppervlakte:
- 82 m2
- Perceeloppervlakte:
- 72 m2
- Externe bergruimte
- 6 m2
- Inhoud:
- 291 m3
- Aantal kamers:
- 4
- Aantal slaapkamers:
- 3
- C.V.-Ketel:
- HR Vaillant (€ 215 afkoop)
- C.V.-Ketel bouwjaar
- 2013
- C.V.-Ketel brandstof
- Gas
- C.V.-Ketel status
- Huur
Buitenruimte
- Hoofdtuin:
- Achtertuin
- Oppervlakte hoofdtuin:
- 8 m2
- Ligging hoofdtuin:
- Zuid
- Achterom:
- Ja
- Kwaliteit tuin:
- Verwaarloosd
Bergruimte
- Schuur / Berging
- Vrijstaand hout
Parkeergelegenheid
- Parkeerfaciliteiten:
- Openbaar parkeren, Betaald parkeren, Parkeervergunningen
Overig
- Onderhoud binnen:
- Slecht
- Onderhoud buiten:
- Slect
- Huidige bestemming:
- Woonruimte
Kadastrale Gegevens
- Gemeente:
- Tongelre
- Sectie:
- E
- Perceelnummer:
- 1917
- Oppervlakte:
- 72 m2
- Eigendomssituatie:
- Volle eigendom
- Isolatie:
- Dubbelglas, Gedeeltelijk dubbelglas, HR glas
Omschrijving
Scherp geprijsde tussenwoning op loopafstand van het centrum!
Ben je op zoek naar een woning die je helemaal naar eigen smaak kunt maken, op een centrale plek in Eindhoven? Dan is deze tussenwoning aan de Rubenstraat absoluut het bekijken waard. De woning beschikt over een tuingerichte woonkamer, halfopen keuken, drie slaapkamers en een stadstuin op het zuiden met een berging. Ideaal voor de handige doe-het-zelver die kansen ziet!
De woning is gelegen aan een karakteristieke straat in de wijk Lakerlopen in Tongelre, binnen de Ring en op loopafstand van winkelcentrum Haagdijk met o.a. een gezondheidscentrum, supermarkten, bakker, Hema en drogisterijen. Eveneens op korte afstand liggen scholen, TU/e, strandbad De IJzeren Man en de Karpendonkse Plas. Het centrum van Eindhoven is binnen 7 minuten fietsen te bereiken en door de ligging nabij de rondweg is er een goede ontsluiting richting de diverse uitvalswegen.
De koper dient rekening te houden met serieuze moderniseringskosten. Bij de vaststelling van de vraagprijs is hier rekening mee gehouden.
Indeling:
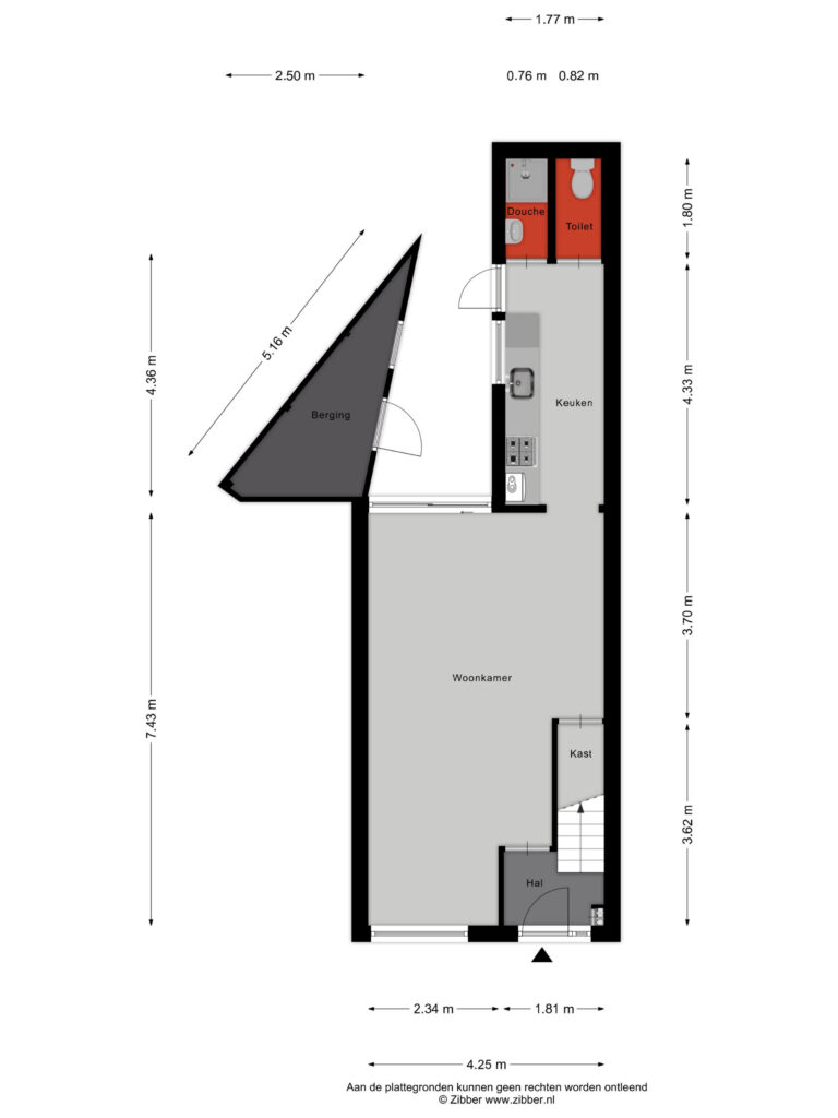
Begane grond:
Entree. In de hal bevinden zich de meterkast met vernieuwde elektragroepen en de trapopgang naar de eerste verdieping. Op de gehele begane grond ligt een lichte tegelvloer.
De tuingerichte woonkamer is een fijne lichte ruimte van circa 26,5 m² en is voorzien van een praktische trapkast en een aluminium raamkozijn met dubbele beglazing aan de voorzijde. Aan de achterzijde biedt een aluminium schuifpui met enkel glas toegang tot de achtertuin.
De keuken is aan de achterzijde gesitueerd en beschikt over een eenvoudig keukenblok.
Aansluitend zijn een separate toiletruimte en een doucheruimte te bereiken. Een deur biedt toegang tot de achtertuin.
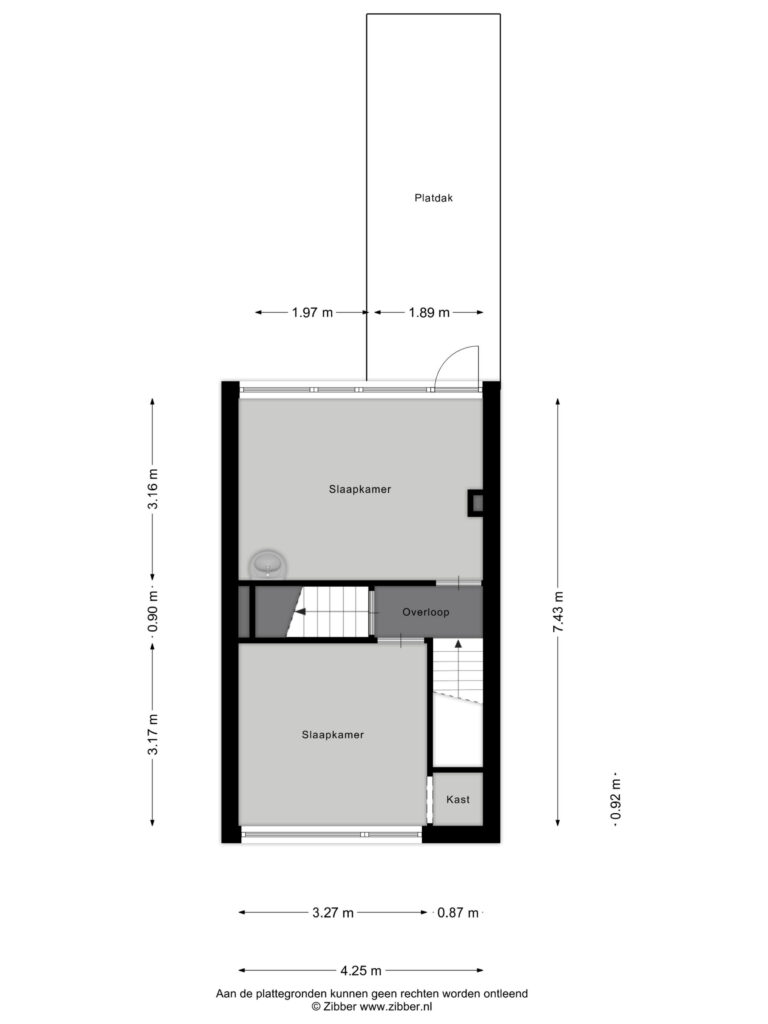
Eerste verdieping:
De overloop biedt toegang tot twee ruime slaapkamers.
Slaapkamer 1 (circa 13,5 m²) is aan de achterzijde gelegen en is voorzien van een wastafel, aluminium raamkozijnen en een deur naar het platte dak.
Slaapkamer 2 (circa 10,5 m²) is aan de voorzijde gelegen en is voorzien van een inbouwkast en aluminium raamkozijnen.
Tweede verdieping:
Via een vaste trap bereik je de zolderverdieping waar een derde slaapkamer met een dakraam is gelegen.
Achtertuin:
De achtertuin is een compacte stadstuin gelegen op het zuiden. Achterin de tuin staat een berging met asbest golfplaten. De tuin beschikt over een achterom.
Algemeen:
– Scherp geprijsd, je koopt hier een huis voor de prijs van een instap appartement!
– Uitstekende kans voor de ervaren klusser met twee rechter handen.
– De afwerking is eenvoudig en gedateerd. De koper dient rekening te houden met serieuze moderniseringskosten.
– Drie volwaardige slaapkamers.
– Stadstuin op het zuiden met berging en achterom.
– De woning ligt op loopafstand van het centrum van Eindhoven.
– De Vaillant c.v.-ketel is in 2013 geplaatst en is gehuurd. De afkoopsom bedraagt € 215,- per 1 maart 2026.
– Volgens de NEN 2580 meetinstructie mag de tweede verdieping niet bij het woonoppervlakte gerekend worden. Echter is deze verdieping compleet te gebruiken als woonoppervlakte en is dit derhalve bij het woonoppervlakte gerekend. Volgens de NEN 2580 meetinstructie is het gebruiksoppervlakte wonen 74 m² en het gebruiksoppervlakte overige inpandige ruimte 8 m².
ALGEMENE WERKWIJZE EN VOORWAARDEN:
De eigenaar van deze woning heeft Hypodomus Makelaars opdracht gegeven te bemiddelen bij de verkoop. Geheel vrijblijvend informeren wij je uitvoerig over de woning, over de financieringsmogelijkheden en de mogelijkheden van de verkoop van jouw eigen woning. Uiteraard is het aan te bevelen de deskundige hulp van een NVM-aankoopmakelaar in te schakelen.
Bieden
Wil je een bod op een woning doen? Uitsluitend de biedingen die in de digitale omgeving van MOVE.NL zijn geplaatst worden in behandeling genomen. Na het plannen van een bezichtiging ontvang je per e-mail gegevens inzake jouw MOVE.NL account. Is er een deadline voor een woning dan kun je dat terugzien in MOVE.NL. Na de deadline kunnen wij in het algemeen geen biedingen meer in behandeling nemen.
Zekerheden
Tot zekerheid voor de nakoming van de verplichtingen dient de koper, binnen uiterlijk 1 week na het definitief worden van de koopovereenkomst, een schriftelijke bankgarantie te stellen, c.q. een waarborgsom te storten ter hoogte van 10% van de koopsom. Verkoper beroept zich te allen tijde op het schriftelijkheidsvereiste bij de verkoop van zijn woning. Tevens is het bedrag voor een financieringsvoorbehoud dat in de koopovereenkomst opgenomen kan worden, niet hoger dan de vraagprijs van de woning.
Meetinstructie
De Meetinstructie is gebaseerd op de NEN2580. De Meetinstructie is bedoeld om een meer eenduidige manier van meten toe te passen voor het geven van een indicatie van de gebruiksoppervlakte. De Meetinstructie sluit verschillen in meetuitkomsten niet volledig uit, door bijvoorbeeld interpretatieverschillen, afrondingen of beperkingen bij het uitvoeren van de meting.
Aanbiedingsinformatie
De brochure is samengesteld om je een indruk te geven van het object. De informatie die opgenomen is in deze brochure is afkomstig van de verkoper en/of derden. Hoewel wij bij het samenstellen van de brochure zorgvuldig te werk gaan, kunnen geen rechten worden ontleend aan onjuistheden e.d. Deze informatie moet in combinatie met een bezichtiging van de woning worden beschouwd als een uitnodiging tot het doen van een bod of om in onderhandeling te treden. Deze informatie is door ons met de nodige zorgvuldigheid samengesteld. Wij ervaarden echter geen enkele aansprakelijkheid voor enige onvolledigheid, onjuistheid of anderszins, dan wel de gevolgen daarvan. Alle opgegeven maten en oppervlakten zijn indicatief. Van toepassing zijn de NVM voorwaarden.
Mondelinge-overeenstemming
Een mondelinge overeenstemming tussen een particuliere verkoper en een particuliere koper is niet rechtsgeldig. Met andere woorden: er is geen koop. Er is pas sprake van een rechtsgeldige koop als een particuliere verkoper en een particuliere koper een koopovereenkomst hebben ondertekend. Dit vloeit voort uit artikel 7:2 Burgerlijk Wetboek. Een bevestiging van de mondelinge overeenstemming per e-mail of een toegestuurd concept van de koopovereenkomst wordt niet gezien als een ‘ondertekende koopovereenkomst’. Wanneer er onderhandelingen worden aangegaan met een professionele partij en er wordt een mondelinge overeenstemming bereikt, wordt eveneens vastgehouden aan het
schriftelijkheidsvereiste.
Ouderdomsclausule (dit wordt uitsluitend gebruikt indien van toepassing)
Een ouderdomsclausule is een bepaling die door Hypodomus Makelaars wordt opgenomen in koopcontracten van woningen die ouder zijn dan 25 jaar. Deze clausule houdt in dat de koper erkent dat de woning een bepaalde ouderdom heeft en dat de kwaliteit van de woning daardoor mogelijk minder is dan van een nieuwere woning. Het wel of niet toevoegen van deze clausule is niet onderhandelbaar.
Niet-zelfbewoningsclausule (dit wordt uitsluitend gebruikt indien van toepassing)
Wanneer de verkoper recentelijk niet in de woning heeft gewoond, wordt een niet-zelfbewoningsclausule opgenomen in de koopovereenkomst. Deze clausule stelt dat de verkoper de woning nooit zelf heeft bewoond en daarom niet bekend is met de eigenschappen of mogelijke gebreken die bekend zouden zijn bij eigen gebruik. Dit betekent dat het risico van eventuele gebreken verschuift naar de koper. De koper is verantwoordelijk voor het uitvoeren van de benodigde onderzoeken. Het wel of niet toevoegen van deze clausule is niet onderhandelbaar.
Wil je meer weten over onze werkwijze, ga dan naar onze website:
www.hypodomus-eindhoven.nl
GENERAL PROCEDURES AND CONDITIONS
The seller of this property has instructed Hypodomus Makelaars to act as their real estate agent in the sale process. We are happy to provide you—entirely without obligation—with detailed information about the property, financing possibilities, and the potential sale of your current home. We also strongly recommend seeking the guidance of a certified NVM purchasing agent.
Submitting an offer
Interested in making an offer on a property? Only offers submitted via the secure digital environment of MOVE.NL will be considered. After scheduling a viewing, you will receive your personal MOVE.NL login details by email. If a deadline applies to the property, it will be visible in your MOVE.NL account. Please note: after the deadline, no further offers can be accepted.
Security deposit
To secure the purchase obligations, the buyer must provide a written bank guarantee or transfer a deposit equal to 10% of the purchase price no later than one week after the purchase agreement becomes final. The seller strictly adheres to the requirement that a sale is only legally binding once the agreement has been signed in writing. Additionally, the financing clause amount that may be included in the purchase agreement cannot exceed the asking price of the property.
Measurement instructions
The measurement guidelines used are based on the NEN2580 standard. This method aims to ensure consistency in determining the usable surface area. However, slight differences in results may still occur due to interpretation, rounding, or limitations during measurement.
Sales information
This brochure is intended to give you an impression of the property. All information included is provided by the seller and/or third parties. Although we compile the brochure with the utmost care, no rights can be derived from any inaccuracies. The information should be viewed in conjunction with an in-person viewing and is intended as an invitation to make an offer or enter into negotiations. While we strive for accuracy, Hypodomus accepts no liability for any errors, omissions, or consequences thereof. All measurements and surface areas are indicative. The NVM conditions apply.
Verbal agreement
A verbal agreement between a private seller and a private buyer is not legally binding. In other words, there is no valid sale until both parties have signed the purchase agreement in writing, in accordance with Article 7:2 of the Dutch Civil Code. A confirmation via email or a draft version of the agreement does not constitute a signed agreement. For professional parties, the written agreement requirement also applies.
Age clause (only applicable if included)
An age clause will be included in the purchase agreement for homes older than 25 years. This clause acknowledges that the property is of a certain age and that its quality may be below that of newer homes. The inclusion or exclusion of this clause is non-negotiable.
Non-occupancy clause (only applicable if included)
If the seller has not recently lived in the property, a non-occupancy clause will be added to the purchase agreement. This clause states that the seller has never used the property personally and is therefore not aware of potential defects that a resident would know. Responsibility for any such issues rests with the buyer, who is advised to conduct all necessary due diligence. This clause is non-negotiable.
For more information about our services and approach, please visit:
www.hypodomus-eindhoven.nl



