Over Chopinlaan 29
Instapklare gezinswoning met vijf slaapkamers op centrale en gewilde locatie!Op zoek naar ruimte, comfort én een betaalbare woning waar je zó in kunt? Deze verrassend royale tussenwoning heeft het allemaal: vijf volwaardige slaapkamers, een vernieuwde badkamer (2022), een moderne PVC-vloer met vloerverwarming op de begane grond (2024) en kunststof kozijnen met triple beglazing (2024). Dankzij de nette afwerking, praktische indeling en de centrale ligging is dit een ideale woning voor (groeiende) gezinnen die instapklaar willen wonen zonder concessies.De woning ligt in een gewilde en...
Kenmerken
Overdracht
- Status
- Verkocht onder voorbehoud
- Vraagprijs
- € 450.000,- k.k.
Bouwvorm
- Soort woning:
- Eengezinswoning
- Type woning:
- Tussenwoning
- Kwaliteit woning:
- Goed
- Bouwjaar:
- 1957
- Bouwvorm:
- Bestaande bouw
- Woonoppervlakte:
- 112 m2
- Perceeloppervlakte:
- 117 m2
- Externe bergruimte
- 9 m2
- Inhoud:
- 396 m3
- Aantal kamers:
- 6
- Aantal slaapkamers:
- 5
- C.V.-Ketel:
- Bosch
- C.V.-Ketel bouwjaar
- 2008
- C.V.-Ketel brandstof
- Gas
- C.V.-Ketel status
- Eigendom
Buitenruimte
- Hoofdtuin:
- Achtertuin
- Oppervlakte hoofdtuin:
- 51 m2
- Ligging hoofdtuin:
- Zuidoost
- Achterom:
- Nee
- Kwaliteit tuin:
- Fraai aangelegd
Bergruimte
- Schuur / Berging
- Vrijstaand steen
Parkeergelegenheid
- Parkeerfaciliteiten:
- Openbaar parkeren
Overig
- Onderhoud binnen:
- Goed tot uitstekend
- Onderhoud buiten:
- Goed
- Huidige bestemming:
- Woonruimte
Kadastrale Gegevens
- Gemeente:
- Gestel
- Sectie:
- D
- Perceelnummer:
- 1893
- Oppervlakte:
- 117 m2
- Eigendomssituatie:
- Volle eigendom
- Isolatie:
- Dubbelglas
Omschrijving
Instapklare gezinswoning met vijf slaapkamers op centrale en gewilde locatie!
Op zoek naar ruimte, comfort én een betaalbare woning waar je zó in kunt? Deze verrassend royale tussenwoning heeft het allemaal: vijf volwaardige slaapkamers, een vernieuwde badkamer (2022), een moderne PVC-vloer met vloerverwarming op de begane grond (2024) en kunststof kozijnen met triple beglazing (2024). Dankzij de nette afwerking, praktische indeling en de centrale ligging is dit een ideale woning voor (groeiende) gezinnen die instapklaar willen wonen zonder concessies.
De woning ligt in een gewilde en rustige woonomgeving, met alle voorzieningen zoals scholen, winkels, openbaar vervoer en uitvalswegen binnen handbereik. De combinatie van een kindvriendelijke buurt en de centrale ligging maakt dit een ideale locatie voor gezinnen én forenzen.
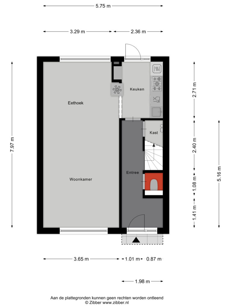
Begane grond
Je betreedt de woning via de ruime ontvangsthal met garderoberuimte, moderne toiletruimte (half betegeld) en trapkast met vernieuwde meterkast, gas- en watermeter. De voordeur is in 2024 vervangen door een onderhoudsarm kunststof exemplaar met uitstekende isolerende eigenschappen.
De woonkamer is heerlijk licht dankzij grote raampartijen en strak afgewerkt met glad stucwerk op de wanden en een schuurplafond. In 2024 is de hele begane grond voorzien van een fraaie houtlook PVC-vloer mét vloerverwarming – strak, stijlvol en comfortabel.
De halfopen keuken is netjes ingericht met veel bergruimte en diverse inbouwapparatuur: een combimagnetron/oven, vaatwasser, 4-pits gasfornuis met wokbrander, afzuigkap en een losse koel-vriescombinatie. De kunststof achterdeur met naastgelegen kozijn is in 2024 vernieuwd en voorzien van triple beglazing.
Eerste verdieping
Via de royale overloop heb je toegang tot vier slaapkamers en de moderne badkamer.
Aan de voorzijde liggen twee kamers, waaronder de ruime masterbedroom en een ideale (kinder)kamer of kantoorruimte. Beide voorzien van een laminaatvloer, HR++ beglazing, spuitwerk en handbediende rolluiken.
Aan de achterzijde vind je twee extra slaapkamers. Eén daarvan wordt nu gebruikt als wasruimte en heeft toegang tot het balkon via een kunststof deur met triple glas. De andere kamer is netjes afgewerkt met strak stucwerk, inbouwspots, kunststof kozijnen (eveneens triple beglazing) en een handbediend rolluik.
De badkamer is in 2022 volledig vernieuwd en uitgevoerd in een moderne stijl met een ruime inloopdouche voorzien van stortdouche, toilet, wastafel in meubel, designradiator, inbouwspots en mechanische ventilatie.
Tweede verdieping
Een vaste trap brengt je naar de tweede verdieping, die uitkomt op een voorzolder met bergruimte en de opstelling van de Bosch cv-ketel (2008).
De slaapkamer op deze verdieping is ruim en licht dankzij het grote dakkapel met houten kozijnen en dubbele beglazing. De kamer is afgewerkt met een zeilvloer en schrootjes wanden/plafond. Er is handige bergruimte onder de knieschotten. Het platte dak van het dakkapel is in 2024 vernieuwd.
Perceel
De onderhoudsvriendelijke achtertuin is grotendeels betegeld, voorzien van een handbediende zonwering en geeft toegang tot de berging. Deze berging is recent opnieuw gevoegd en gereinigd en daardoor zowel praktisch als verzorgd.
Pluspunten op een rij:
– Instapklaar en goed onderhouden gezinswoning
– Vijf volwaardige slaapkamers
– 2022: badkamer vernieuwd
– 2024: kunststof voordeur, achterdeur en kozijnen achterzijde eerste verdieping (triple beglazing) geplaatst.
– 22024: PVC-vloer begane grond vernieuwd
– 2025: alle gevels opnieuw gevoegd en gereinigd
– Woning is grotendeels voorzien van kunststof kozijnen en dubbele of triple beglazing
– Fraaie onderhoudsarme achtertuin met berging
– Dakkapel met vernieuwd dak (2024)
– Centrale ligging nabij winkels, scholen, OV en uitvalswegen
Ben jij klaar om deze ruime en comfortabele woning te ontdekken? Plan dan snel een bezichtiging in – we laten je dit instapklare gezinshuis graag zien!
ALGEMENE WERKWIJZE EN VOORWAARDEN:
De eigenaar van deze woning heeft Hypodomus Makelaars opdracht gegeven te bemiddelen bij de verkoop. Geheel vrijblijvend informeren wij je uitvoerig over de woning, over de financieringsmogelijkheden en de mogelijkheden van de verkoop van jouw eigen woning. Uiteraard is het aan te bevelen de deskundige hulp van een NVM-aankoopmakelaar in te schakelen.
Bieden
Wil je een bod op een woning doen? Uitsluitend de biedingen die in de digitale omgeving van MOVE.NL zijn geplaatst worden in behandeling genomen. Na het plannen van een bezichtiging ontvang je per e-mail gegevens inzake jouw MOVE.NL account. Is er een deadline voor een woning dan kun je dat terugzien in MOVE.NL. Na de deadline kunnen wij in het algemeen geen biedingen meer in behandeling nemen.
Zekerheden
Tot zekerheid voor de nakoming van de verplichtingen dient de koper, binnen uiterlijk 1 week na het definitief worden van de koopovereenkomst, een schriftelijke bankgarantie te stellen, c.q. een waarborgsom te storten ter hoogte van 10% van de koopsom. Verkoper beroept zich te allen tijde op het schriftelijkheidsvereiste bij de verkoop van zijn woning. Tevens is het bedrag voor een financieringsvoorbehoud dat in de koopovereenkomst opgenomen kan worden, niet hoger dan de vraagprijs van de woning.
Meetinstructie
De Meetinstructie is gebaseerd op de NEN2580. De Meetinstructie is bedoeld om een meer eenduidige manier van meten toe te passen voor het geven van een indicatie van de gebruiksoppervlakte. De Meetinstructie sluit verschillen in meetuitkomsten niet volledig uit, door bijvoorbeeld interpretatieverschillen, afrondingen of beperkingen bij het uitvoeren van de meting.
Aanbiedingsinformatie
De brochure is samengesteld om je een indruk te geven van het object. De informatie die opgenomen is in deze brochure is afkomstig van de verkoper en/of derden. Hoewel wij bij het samenstellen van de brochure zorgvuldig te werk gaan, kunnen geen rechten worden ontleend aan onjuistheden e.d. Deze informatie moet in combinatie met een bezichtiging van de woning worden beschouwd als een uitnodiging tot het doen van een bod of om in onderhandeling te treden. Deze informatie is door ons met de nodige zorgvuldigheid samengesteld. Wij ervaarden echter geen enkele aansprakelijkheid voor enige onvolledigheid, onjuistheid of anderszins, dan wel de gevolgen daarvan. Alle opgegeven maten en oppervlakten zijn indicatief. Van toepassing zijn de NVM voorwaarden.
Mondelinge-overeenstemming
Een mondelinge overeenstemming tussen een particuliere verkoper en een particuliere koper is niet rechtsgeldig. Met andere woorden: er is geen koop. Er is pas sprake van een rechtsgeldige koop als een particuliere verkoper en een particuliere koper een koopovereenkomst hebben ondertekend. Dit vloeit voort uit artikel 7:2 Burgerlijk Wetboek. Een bevestiging van de mondelinge overeenstemming per e-mail of een toegestuurd concept van de koopovereenkomst wordt niet gezien als een ‘ondertekende koopovereenkomst’. Wanneer er onderhandelingen worden aangegaan met een professionele partij en er wordt een mondelinge overeenstemming bereikt, wordt eveneens vastgehouden aan het
schriftelijkheidsvereiste.
Ouderdomsclausule (dit wordt uitsluitend gebruikt indien van toepassing)
Een ouderdomsclausule is een bepaling die door Hypodomus Makelaars wordt opgenomen in koopcontracten van woningen die ouder zijn dan 25 jaar. Deze clausule houdt in dat de koper erkent dat de woning een bepaalde ouderdom heeft en dat de kwaliteit van de woning daardoor mogelijk minder is dan van een nieuwere woning. Het wel of niet toevoegen van deze clausule is niet onderhandelbaar.
Niet-zelfbewoningsclausule (dit wordt uitsluitend gebruikt indien van toepassing)
Wanneer de verkoper recentelijk niet in de woning heeft gewoond, wordt een niet-zelfbewoningsclausule opgenomen in de koopovereenkomst. Deze clausule stelt dat de verkoper de woning nooit zelf heeft bewoond en daarom niet bekend is met de eigenschappen of mogelijke gebreken die bekend zouden zijn bij eigen gebruik. Dit betekent dat het risico van eventuele gebreken verschuift naar de koper. De koper is verantwoordelijk voor het uitvoeren van de benodigde onderzoeken. Het wel of niet toevoegen van deze clausule is niet onderhandelbaar.
Wil je meer weten over onze werkwijze, ga dan naar onze website:
www.hypodomus-eindhoven.nl







































